Conception d'une pièce Khrouchtchev: 16 conseils + photos
À l'époque de Khrouchtchev, le gros problème était le problème du logement, que les constructeurs "habiles" ont résolu à l'aide de la construction de nombreuses maisons, le plus souvent en panneaux, avec des appartements d'une superficie très modeste. Dans l'ensemble, un moyen de sortir de la situation a été trouvé, les gens ont acquis leur propre logement et les griefs étaient terminés. Mais! Personne n'a vraiment pensé au fait que la taille et la disposition de ces appartements, en particulier ceux d'une pièce, laissaient beaucoup à désirer. Oh lacunes de Khrouchtchev de petite taille on peut parler depuis très longtemps, mais, malgré cela, ce type de propriété n'a pas encore perdu de sa popularité. La raison est très simple - le faible coût des appartements, en particulier par rapport à nouveaux bâtiments. Par conséquent, au lieu de vous rappeler une fois de plus quel intérieur terne et indescriptible vous avez dans votre appartement, vous devez réviser radicalement conception d'une pièce Khrouchtchev et essayez de le transformer. Nous avons collecté des hacks de vie pour la sélection des matériaux de finition, des meubles, des couleurs, de l'éclairage, ainsi que des options de réaménagement, des méthodes de zonage et de nombreuses photos.
1. Khrouchtchev. Agencements typiques
La construction massive du Khrouchtchev a commencé en 1958 et a duré jusqu'en 1985. À cette époque, des milliers de familles ont reçu leur propre logement dans des maisons en panneaux et en briques de 4 à 5 étages. Les chambres étaient très petites et dans la plupart des cas accessibles, les couloirs étaient étroits et sombres et les salles de bains étaient immédiatement partagées. La hauteur sous plafond était de 2,48 m, dans de rares cas - 2,7 m. La superficie des appartements d'une pièce ne dépassait pas 29-33 m². dont 5,8-6,2 mètres ont été alloués à la cuisine, de 15,9 à 20,7 mètres - au salon. Le reste de la place était occupé par un couloir et une salle de bain. Les dimensions des locaux dépendaient de l'année de construction et de la série et avaient les caractéristiques suivantes: typique mise en page:


Il est à noter que presque tous les odnushki avaient un balcon et presque la même disposition des pièces. Avant de commencer à certaines mesures radicales, vous devez savoir clairement:
- Le nombre exact de résidents. Après tout, c'est une chose que de travailler à organiser une vie confortable pour une personne et une autre pour une jeune famille avec un enfant. Les exigences seront radicalement différentes, la division de la zone sera complètement différente;
- Sans quelles zones fonctionnelles vous ne pouvez certainement pas vivre. Nous parlons de "pièces" comme un bureau ou une chambre entièrement isolée. Après tout, certaines personnes utilisent simplement le canapé dans le salon pour dormir quotidiennement et se sentent complètement normales tandis que d'autres ouvrent une telle oppression;

Le volume de travail que nous devons planifier, la nécessité de démolir les cloisons intérieures ou, à l'inverse, la construction de cloisons supplémentaires, dépendra des deux facteurs énumérés ci-dessus. Ne sois pas surpris. Mais vraiment pas tous les créateurs recommander de faire de odnushki studio. Afin que le logement réponde à toutes les exigences des propriétaires, les cloisons aveugles à part entière sont parfois faites de matériaux légers - cloisons sèches ou béton cellulaire. Par conséquent, il est recommandé de faire une liste des éléments requis que vous souhaitez avoir. Cela peut être n'importe quoi - un évier en face de la fenêtre de la cuisine, une étagère pour une bibliothèque personnelle, des appareils électroménagers que vous ne pouvez pas refuser, etc. Sur la base de cette liste, vous devez planifier la conception intérieure et redistribuer l'espace entre les zones.

2. Des mesures radicales pour élargir l'espace
Il n'est pas toujours possible d'agrandir visuellement l'espace, en utilisant uniquement la technique bien connue «un appartement spacieux - un appartement blanc». De plus, tout le monde n'est pas à l'aise entouré de murs blancs et de meubles blancs et tout blanc, malgré le fait que cette couleur a de nombreuses belles nuances. Par conséquent méthodes physiques l'augmentation de la surface utilisable prévaut toujours dans la plupart des cas. 
Il n'y a que deux options possibles:
- Démolition de cloisons. Le moment le plus agréable est que toutes les toilettes de la pièce unique de Khrouchtchev ne supportent pas. Dans de très rares cas, ce n'est pas le cas. Par conséquent, vous avez une totale liberté d'action et vous ne risquez pas d'effondrer l'ensemble du bâtiment en raison d'un réaménagement inepte. L'absence de cloisons rendra instantanément la maison plus spacieuse et lumineuse et ouvrira de nouvelles possibilités pour organiser les meubles et les diviser en zones nécessaires. Mais n'oubliez pas que tout travail doit être légalisé par les autorités compétentes. En effet, sans nouveau passeport technique, vous ne pourrez plus vendre de logements réaménagés à l'avenir;

- Combinaison avec balcon. Dans le premier paragraphe, nous avons souligné que presque tous les odnushki ont un balcon pour une raison. Après tout, ce sont des mètres supplémentaires inestimables pour la surface totale de la pièce. Oui, il est peu probable que vous puissiez augmenter la taille de la pièce de plus de 4 mètres carrés, mais vous devez admettre, avec une superficie totale de 30 carrés - c'est un vrai bonus que vous devez absolument utiliser! L'espace qui apparaît peut être utilisé à votre guise, selon qu'il jouxte la cuisine ou le salon. Afin de rendre cet endroit confortable, il faut travailler sur isoler toute sa surfacee et ensemble fenêtres à double vitrage de haute qualité. Soit dit en passant, une telle combinaison s'applique également au réaménagement et nécessite tous les documents facultatifs. Surtout si vous prévoyez vitrage panoramique.

Oui, vous devrez visiter de nombreuses institutions avant de vous mettre d'accord sur tout le travail, mais le résultat en vaudra la peine. Et si vous vous tournez vers des organisations de construction qui développeront un projet de conception pour obtenir de l'aide, alors dans la plupart des cas, elles prendront sur elles toutes les autorisations, ce qui accélérera considérablement le début des travaux et vous épargnera les nerfs. Bien sûr pense avant comment combiner la cuisine avec le salon. Après tout, premièrement, si la pièce a une cuisinière à gaz, alors il doit y avoir une porte. Et deuxièmement, si vous utilisez souvent la cuisine et pour l'usage auquel elle est destinée, cela peut ne pas être très pratique. Avec des odeurs caractéristiques aidera à faire face. capuche puissantemais avec les sons qui l'accompagnent - non.

3. Façons de zoner l'espace combiné
Après que toutes les cloisons supplémentaires qui ont empêché la respiration soient détruites, il est temps de diviser correctement le grand rectangle en zones fonctionnelles. Dans ces petits espaces, il est nécessaire de choisir de tels méthodes de zonagequi ne prendra pas beaucoup de place. Par conséquent, le plus souvent utilisé méthodes non physiques:
- Zonage en utilisant différents matériaux de finition. La séparation d'une zone d'une autre peut être exclusivement visuelle. L'effet souhaité sera atteint par les revêtements de murs et de sols, qui devront différer dans une zone particulière en couleur, texture ou performance.Par exemple, dans le salon, ce sera une imitation de maçonnerie, et dans la zone de loisirs - papier peint ou peinture. Le hall d'entrée a des carreaux de sol et dans le salon revêtement de sol stratifié etc.;
- Zonage léger. Cette option répond parfaitement à sa tâche, elle a l'air belle et intéressante et remplit l'appartement de lumière, ce qui le rend visuellement plus spacieux. Chaque zone doit avoir sa propre luminaire. Quelle forme spécifique il sera présenté n'a pas d'importance, l'essentiel est que vous puissiez l'utiliser pleinement indépendamment des autres. Par exemple, dans le salon, vous pouvez accrocher lustre complet au-dessus du canapé, dans la zone faisant office de bureau, posez une lampe de table. Dans la zone de loisirs, montez plusieurs lampes à diode au plafond ou accrochez une applique. Également souvent utilisé lampadaires, bande de diodeprojecteurs dont le flux lumineux peut être dirigé au bon endroit;

- Mobile écrans - Un excellent moyen de créer un espace isolé. Et au besoin, ils sont faciles à plier et à ranger dans un endroit isolé;
- Zonage textile - Une autre belle façon qui ne nécessite pas beaucoup d'espace. Séparer un endroit pour dormir d'un espace commun est très simple en le plaçant sur la bordure corniche et accrocher un beau rideau. Densité du matériau sélectionnés à votre discrétion. Si vous souhaitez une isolation complète, choisissez un tissu dense et résistant à la lumière. Mais n'utilisez pas de teintes trop sombres. Si vous n'avez qu'à indiquer la bordure, les rideaux de filament et le tulle clair feront l'affaire;

- Cloisons transparentes en verre ou en plastique font également un excellent travail;
Afin de ne pas sacrifier la porte à la cuisine, tout en étant capable d'agrandir l'espace, installez de larges portes coulissantes. Lorsque vous n'êtes pas occupé à cuisiner, ils peuvent facilement être déplacés;
- Des panneaux à bulles ou des aquariums étroits, bien qu'ils occupent un peu d'espace, mais ils ont l'air très impressionnants et inhabituels;
- La façon la plus dimensionnelle - le zonage à l'aide de meubles, parfois c'est juste une nécessité. Mais n'oubliez pas que le mur arrière de l'armoire peut simultanément être un endroit pour placer des étagères murales, des miroirs pleine longueur, ou simplement être collé avec du papier peint et servir de partition à part entière.
Avant de fixer les limites, vous devez décider de combien de mètres as-tu besoin pour telle ou telle pièce. Par exemple, 1 à 2 mètres carrés suffisent pour une étude, 6 à 8 pour une chambre à coucher, pas plus de 6 pour une cuisine, de 8 à 10 pour une chambre pour enfants, car en plus d'un lieu de repos, il devrait y avoir une place pour les jeux et un bureau. Le reste reste sous le salon. Le plus souvent, un balcon est réservé à l'organisation d'un ou deux postes de travail.
4. Exemples de réaménagement réussi de Khrouchtchev
Dans cette section, nous donnerons quelques exemples d'aménagements étonnants et fonctionnels de Khrouchtchevs d'une pièce, d'une superficie de 30 m². ont été mis en œuvre dans la réalité. Lors de la planification, toutes les exigences et les souhaits des propriétaires ont été pris en compte et les dimensions du mobilier, l'épaisseur des cloisons et des allées, ont été calculées jusqu'à un centimètre. Sinon, il n'aurait tout simplement pas été possible d'apporter des meubles dans la pièce.
- Exemple n ° 1. Lors du réaménagement de cette habitation, toutes les cloisons ont d'abord été démolies, puis de nouvelles ont été érigées. La bonne épaisseur et aux bons endroits. La cuisine était toujours combinée avec le salon, à la frontière comptoir de bar et chaisescar la table a dû être sacrifiée. Cela a permis d'installer un canapé et de petites tables de nuit sur les côtés. Il convient de noter que le coin cuisine ne fait que 5 mètres carrés. La chambre s'est avérée assez spacieuse et pourrait convenir le lit et armoire. Il a été possible de maintenir un couloir spacieux, où une niche a été organisée pour garde-robe. Ainsi, l'espace de stockage dans l'appartement est plus que suffisant. La superficie de la salle de bain est de seulement 3 m². Par conséquent, ils ont préféré le bain standard cabine de doucheet l'évier a été installé au-dessus de la machine à laver. Eh bien, et qu'est-ce que vous n'avez pas de pièce kopeck complète?

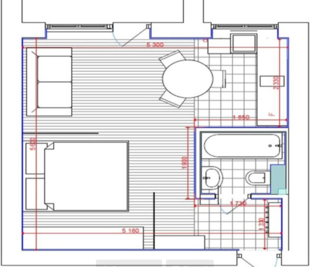
- Exemple n ° 2. Cette disposition est mise en œuvre sur une superficie de 31 mètres carrés dans un appartement d'angle. Dans ce mode de réalisation, la cuisine est restée isolée du reste des locaux. De plus, une cloison a été ajoutée dans le salon, ce qui a permis de séparer la zone de couchage et d'élargir l'ouverture entre le couloir et le salon. Le cadre de la porte a été démonté, ce qui a permis d'agrandir visuellement la pièce. En raison du fait que l'appartement est angulaire, à la fois dans le salon et dans la chambre, il y a une ouverture de fenêtre, ce qui en fait des pièces complètes et séparées. La superficie de la chambre est de 7 m², le salon est de 9 m². En même temps, les deux chambres comprennent un petit lieu de travail. Veuillez noter que tous les meubles sont mobiles et fonctionnels.
Le bureau est équipé de roulettes, ce qui vous permet de le déplacer vers le centre du salon à l'arrivée des invités. Le cas volumineux est présenté par un modèle angulaire. Et le plus agréable est que la salle de bain a réussi à s'adapter à une baignoire entièrement rectangulaire en raison du fait qu'une plomberie étroite a été utilisée et toilettes suspendues la plus petite taille, et la machine à laver était suspendue au-dessus des toilettes;
- Exemple n ° 3. La superficie de cet appartement est de 29 mètres carrés. Dans ce cas, chaque centimètre d'espace a été utilisé au maximum. Une partie des cloisons a été démontée, niche équipée pour accueillir le lit et déplacé l'entrée de la cuisine. Là où il y avait une porte de la cuisine, il y a maintenant un petit lieu de travail. La cuisine fait 5 m². Il y a un grand nombre d'équipements intégrés. Il a été possible de l'installer car les modèles encastrés les plus étroits ont été choisis et le poêle à gaz a été remplacé par un brûleur à deux brûleurs. plaque de cuisson. Pour avoir un espace de travail complet, plan de travail étendu et en face de la fenêtre. La chambre et le salon constituent en effet une seule pièce. Mais l'isolement d'une couchette est dû à un écran coulissant. Le diagramme montre qu'une grande armoire d'angle tient dans le couloir. Un espace de stockage supplémentaire est fourni par une niche dans le canapé et une grande boîte sous le matelas du lit avec un mécanisme de levage, ainsi que étagères murales;

- Exemple n ° 4. Cet exemple est le réaménagement d'un appartement de 30 m². intéressant en ce qu'une cloison en verre a été utilisée pour isoler le lit.
De plus, il est équipé de rideaux occultants qui, même en plein jour, permettent une atténuation complète. Dans la chambre sous le mur, il y a une grande armoire avec des façades en verre. Cette technique permet de créer une perspective qui augmente visuellement l'espace. Un autre placard plus petit est situé dans le couloir. Le salon est combiné avec la cuisine, et à la frontière il y a un groupe de salle à manger. Appui de fenêtre dans la cuisine a été élevée à un niveau avec un comptoir et est sa continuation. L'entrée de la salle de bain a été déplacée, grâce à laquelle il a été possible de placer de manière compacte tout le nécessaire, et même une salle de bain complète. Dans ce cas, la machine à laver est également suspendue à l'aide de supports spéciaux au-dessus des toilettes. D'accord, après de telles actions, il est déjà difficile d'appeler l'appartement Khrouchtchev. Un tel logement est adapté au maximum aux besoins des propriétaires, de manière fonctionnelle et confortable.
5. Quel style d'intérieur est préférable de choisir
Pour prétendre que un style spécifique est le plus recommandé pour l'intérieur d'un Khrouchtchev d'une pièce, aura tort. Tous les styles conviennent également. pour la conception de grandes et petites pièces. Bien sûr, les tendances modernes, qui se distinguent par leur simplicité, leur retenue et leur concision, donneront les meilleurs résultats. De tels intérieurs sont dotés d'un espace spécial, d'un sentiment de liberté, remplis de lumière et ne contiennent que l'essentiel. Mais que faire pour ceux qui préfèrent le classique ou le mignon provence? Et s'il n'y a pas de favori précis du tout?

Pour créer un espace harmonieux, vous devez s'en tenir à plusieurs recommandations:
- Si vous aimez les traits caractéristiques de plusieurs styles à la fois, ne vous privez pas du plaisir de créer un intérieur unique.L'essentiel est que les styles soient en harmonie les uns avec les autres et ne créent pas de contrastes inappropriés;
- Les amoureux marelle n'abandonnez pas vos préférences. Étant donné que ces styles royaux sont mieux révélés dans les grandes zones et dans les petites pièces créent un sentiment d'encombrement, utilisez uniquement certains fragments caractéristiques. Par exemple, concentrez-vous sur les textiles chics et chers. Cette caractéristique est caractéristique à la fois des classiques et du baroque et de la Renaissance. Ajoutez une petite moulure en stuc sur les coins du plafond ou «doré» un beau cadre autour du miroir. Utilisez des matériaux de finition appropriés, de belles nuances de tissu pour les lampadaires et les lampes de table. Et un intérieur luxueux mais spacieux vous est fourni;
- Les adeptes de styles ethniques ont juste besoin d'apporter des éléments de décoration reconnaissables à l'intérieur. Par exemple, le style égyptien n'est pas sans statuettes sphinx et pyramides, chinois - sans hiéroglyphes et dragons, japonais - sans branche gracieuse de sakura, etc. et bien sûr, vous devez respecter un schéma de couleurs approprié.

6. Conseils pour choisir les matériaux de finition
Diverses interdictions sur l'utilisation de certains matériaux décoratifs sont également une grosse erreur. Selon le style choisi peut utiliser tout - et panneaux en plastique et papier peint en papier. Se démarquent encore trop, car dans petites piècesle plus simple sera le mieux.
- Pour décoration murale essayez d'utiliser des matériaux unis ou ceux qui ont une texture naturelle. Une solution appropriée serait d'appliquer fond d'écran photo. Un dessin bien choisi avec une perspective agrandira visuellement la pièce. Des paysages variés, sur lesquels il y a un chemin, comme s'éloignant au loin, sont parfaits. L'avantage de telles toiles est qu'elles dérangent rarement, contrairement à l'abstraction ou à une vue de la ville la nuit. Essayez de choisir des fonds d'écran sur lesquels il n'y aura pas de trop grande image. N'oubliez pas les miroirs ou les panneaux de miroirs;

- Depuis les plafonds à Khrouchtchev basne vaut pas la peine d'être construit conceptions en couches. Ils l'abaissent visuellement encore plus bas. Un simple plafond blanc avec un éclairage doux et contour est la meilleure solution. Et va-t-il traction ou simplement peint ne dépend que de l'état de la surface. Il est acceptable d'utiliser l'impression photo avec l'image du ciel. Cela créera l'illusion qu'il n'y a pas de plafond du tout;

- En tant que plancher peut être utilisé comme tuile ou linoléumdonc et parquet ou revêtement de sol stratifié. Choisissez des matériaux en fonction de la destination des locaux. Lorsqu'un nettoyage humide fréquent avec des détergents est nécessaire (bain, cuisine, salon), il est préférable de privilégier les revêtements plus résistants. Les zones de couchage et de repos privilégient les matériaux plus «chauds».

7. Bonne organisation de l'éclairage
Nous avons déjà dit que lors de la division de l'espace en plusieurs zones fonctionnelles, il est nécessaire de prévoir un éclairage indépendant pour chacune d'elles. Choix de luminaires dépend des préférences et des besoins, mais il vaut mieux qu'ils soient tous soutenus et dans un style uniforme.
- Choisissez une lumière naturelle ou chaude. Cela créera un environnement confortable pour vos yeux;
- Utilisez un éclairage à plusieurs niveaux - et des lampes, des lampadaires et des appliques, ainsi que l'éclairage principal et l'éclairage décoratif. Dans les petites pièces, il n'y a pas beaucoup de lumière;

- Positionnez les lumières de manière à ce qu'elles soient fonctionnelles et éclairent un objet ou une zone spécifique;
- N'oubliez pas que pendant la journée, un maximum de lumière naturelle doit pénétrer dans l'appartement. Ne bloquez pas les ouvertures des fenêtres avec des meubles. Ne les couvrez pas avec des écrans. Ne forcez pas les rebords de fenêtre avec de grandes fleurs dans des pots. Une technique intéressante sera le rejet complet de tout textile ou stores. Des ouvertures «nues» agrandissent visuellement la pièce.
8. Nous sélectionnons la palette de couleurs optimale
Non seulement une couleur blanche unie permet de rendre la pièce spacieuse.Vous pouvez utiliser de nombreuses autres teintes. L'essentiel est qu'ils soient proches de la lumière, pastel. D'accord en forme tel tons comme:
- Crème;
- Sable;
- Rose pâle ou pêche;
- Lavande;
- Jaune pâle ou vert pâle;
- Bleu bébé;
- Gris clair.

En général, prenez votre couleur préférée comme base et choisissez dans la palette de ses nuances claires. Aussi autorisé à utiliser à l'intérieur de petites pièces et couleurs vives. Mais ils devraient se manifester sous la forme de petits accents. Par exemple, ce peut être un beau vase au sol, une image, petit tapis ou coussins de canapé. Pour que la palette de couleurs de l'appartement ne ressemble pas à de la vinaigrette et soit compréhensible et harmonieuse, il est recommandé de ne pas utiliser plus de 3 couleurs. Où 60% de la zone doit être occupée par la couleur d'arrière-plan principale, 30% - supplémentaire, et seulement 10% est réservé aux détails lumineux. Par ceci la règle tous les architectes d'intérieur l'utilisent, car ce n'est que de cette façon qu'il est possible de construire une composition de couleur correcte et facile à lire.
9. Exigences pour les meubles
Dans des conditions exiguës, chaque article a sa propre place, qui est strictement limitée. C'est cette approche qui permet d'utiliser rationnellement l'espace. Tous les meubles sélectionnés pour un studio, doit répondre comme suit exigences:
- Avoir la forme la plus simple et la plus correcte;
- Avoir un stockage caché, c'est-à-dire être fonctionnel;
- Faites attention aux conceptions modulaires qui, si nécessaire, peuvent être des éléments séparés;

- En tant que table à manger, il est préférable de choisir des structures pliantes compactes;
- Tables basses peut également être transformé en tables à manger complètes pour 4-6 personnes;
- Cher, mais l'acquisition la plus fonctionnelle sera le mobilier transformateur. Un canapé ou un lit, réalisé de cette manière, permettra d'économiser un maximum d'espace libre;
- Il est préférable d'utiliser des miroirs comme façades d'armoires coulissantes;

- Certains lits sont équipés d'étagères autour de la tête du lit - un excellent moyen de placer de petites choses agréables;
- Obtenez uniquement des meubles vraiment nécessaires, dont vous ne pouvez pas vous passer. Cela n'encombrera pas l'espace;
- Les meubles sombres dans les petites pièces auront l'air gigantesques et massifs, créeront une sensation pressante. Il est préférable d'utiliser des teintes de bois naturel dans des tons clairs ou des façades blanches.

10. Conception de cuisine à Khrouchtchev
Beaucoup de gens se demandent - comment faire prémisse une superficie de 6 m² non seulement beau mais aussi spacieux. Avec la bonne approche, c'est très simple:
- Assurez-vous d'utiliser le rebord de la fenêtre comme prolongement de la surface de travail;
- Choisissez une technique intégrée compacte de taille minimale;

- Si la famille est petite, il n'est pas nécessaire d'acheter des encombrants et grands réfrigérateurs + Congélateur séparé. Assez de réfrigérateur de taille moyenne;
- Assurez-vous de remplacer un poêle conventionnel par une plaque de cuisson et un four séparé;
- Utilisez des hottes intégrées de la série Slim. Cela permettra de ne pas emporter d'espace, mais de le donner sous une armoire murale supplémentaire, ainsi que de cacher les communications;
- S'il y a une telle opportunité - utilisez l'espace autour de l'ouverture de la fenêtre pour organiser des étagères ou des étagères fermées ou ouvertes;
- Les façades brillantes de nuances claires refléteront plus de lumière et aideront à élargir les limites;

- Une table transparente en verre ou en plastique semblera moins globale;
- S'il n'y a aucun besoin aigu d'un groupe complet de repas, remplacez la table par un comptoir de bar ou îlot de cuisine, qui peut en outre être équipé d'étagères. Cette méthode est particulièrement populaire dans les cuisines combinées avec le salon.
11. Caractéristiques de la conception de la salle de bain
Une salle de bain dans une pièce Khrouchtchev est vraiment un standard de compacité. Ajuster tout ce dont vous avez besoin est parfois une tâche écrasante, mais nous pouvons gérer cela:
- L'élément le plus important dans cette pièce est le bain. Cependant, la plupart ne l'utilisent que pour prendre une douche. Dans ce cas, il est plus raisonnable obtenir compact cabine de douche;

- Les toilettes suspendues auront l'air plus petites qu'elles ne le sont vraiment. Mais le nettoyage de la pièce deviendra immédiatement plus pratique;
- Essayez de placer le moins d'objets possible sur le sol. Utilisez des armoires et des éviers suspendus;
- Pour le stockage des produits chimiques ménagers, il est préférable d'acheter une armoire plate dont la façade sera simultanément un miroir;
- Il est très important que cette petite pièce soit toujours bien rangée. Pas besoin de placer de nombreuses étagères sur les murs. Et si vous décidez de suspendre - utilisez du verre. Ne suspendez pas un ensemble complet de serviettes sur tout le mur. Il est préférable de les tordre magnifiquement avec un rouleau dense et de placer la pyramide sur une étagère ouverte sous l'évier;

- S'il n'est pas possible d'emmener le lave-linge dans la cuisine, choisissez le modèle compact, au-dessus duquel vous pouvez placer le lavabo, ou que vous pouvez même accrocher au mur. En règle générale, ces modèles sont conçus pour pas plus de 3 kg de linge;
- Choisissez des matériaux de décoration lumineux et n'oubliez pas le rétro-éclairage.
12. L'intérieur du salon dans le studio Khrouchtchev
En fait, le salon devrait s'adapter au total deux meubles, qui sont absolument nécessaires pour absolument tout le monde - un canapé et une armoire. Les articles restants sont achetés en fonction de la taille de l'espace libre restant et de leur besoin réel.
- Ça vaut vraiment le coup refuser de la manière habituelle de placer le téléviseur - sur le piédestal. Il serait beaucoup plus raisonnable de l'accrocher au mur à l'aide de supports spéciaux;

- S'il y a un coin libre, il est préférable de choisir une armoire de conception angulaire. Ces modèles semblent compacts, mais en fait, ils peuvent accueillir un grand nombre de choses;
- N'utilisez pas un grand nombre d'articles de décoration. Il est également important de garder une trace de leur taille. Une grande image sur un mur étroit ne fera que souligner la taille modeste. De nombreux petits éléments sont également indésirables. 4-5 articles de taille moyenne suffiront;
- Il convient également de surveiller attentivement si les dimensions du mobilier sont proportionnelles à la taille de la pièce. Des armoires trop profondes et trop larges «gonfleront» du mur, comme si elles étaient à l'étroit. Un grand canapé transformera une petite pièce en une petite, s'il n'y a pas d'espace libre autour d'elle;

- Si vous avez une bibliothèque personnelle, placez-la sur un rack ouvert en U qui est mieux placé sous un mur avec un téléviseur. S'il existe un tel élément, les autres éléments de décoration doivent être jetés;
- Aussi, n'utilisez pas plusieurs tapis dans une même pièce. Si vous souhaitez réchauffer le sol, il est préférable de le recouvrir immédiatement d'un tapis uni sur tout le périmètre;
13. Que faire avec un petit couloir
Le hall d'entrée de Khrouchtchev ne s'est pas éloigné de la salle de bain de la zone qui lui était réservée. Le plus désagréable à l'intérieur d'un couloir, bien sûr, qui n'est pas combiné avec le salon, est manque de source lumière naturelle. Connaissant cet inconvénient, vous devez essayer de l'éliminer et de l'utiliser. appareils d'éclairage puissants.
- Si le réaménagement est effectué, vous devez fournir une niche dans laquelle vous pouvez installer un petit placard ou un cintre pour les vêtements d'extérieur;
- Sinon, il vaut mieux se limiter aux meubles suivants - une armoire à chaussures, un cintre au sol, un miroir, un pouf ou un petit banquet;
- L'intérieur du couloir est mieux entretenu dans des couleurs vives;

- L'endroit au-dessus de la porte d'entrée peut être utilisé pour les mezzanines, où il est pratique de ranger les chaussures dans des boîtes;
- Soit dit en passant, la porte d'entrée elle-même peut être utilisée comme cintre en y vissant quelques crochets.
14. Organisation d'une chambre d'enfants à Khrouchtchev
La question qui inquiète beaucoup de jeunes familles est de savoir comment trouver un endroit pour organiser une crèche? Ce n'est vraiment pas facile à faire, le plus souvent, ces appartements n'ont pas de coin couchage pour les adultes. Son rôle est un canapé pliant dans le salon.Une exception est le cas lorsque le lit des parents est installé sur le balcon combiné. Mais dans ce cas, une isolation thermique et acoustique de très haute qualité sera nécessaire. Cependant, une telle option a également sa place.
- Afin de ne pas vous priver de la joie d'avoir votre propre chambre et une crèche, vous pouvez retirer l'aire de jeux ou le bureau de l'enfant sur le balcon;
- En tant que partition, il est préférable d'utiliser un écran mobile, qui est facilement supprimé car inutile;
- N'oubliez pas non plus les lits mansardés, qui sont un lieu à part entière pour les cours au premier étage et une couchette au deuxième;

- Pour les enfants plus âgés, achetez un lit avec des tiroirs intégrés, cela vous permettra de refuser d'acheter des meubles supplémentaires;
- Utilisez des paniers à jouets;
- De nombreux bureaux ont des extensions, sur lesquelles il est pratique de stocker des manuels et d'autres besoins;
- N'oubliez pas que l'enfant n'a pas besoin d'une grande quantité de meubles, c'est plus vos besoins que lui. Par conséquent, il vaut mieux laisser plus d'espace pour le jeu.
15. Comment intégrer une étude dans un appartement modeste
Il se trouve que beaucoup ont un besoin urgent d'une étude dans l'appartement. Il est difficile d'appeler ce petit site un bureau à part entière, mais en termes de fonctionnalité, il ne sera pas inférieur à un grand bureau.
- Que devrait être au bureau? Cela dépend de votre profession. La grande majorité est un ordinateur ou un ordinateur portable et une petite table avec une chaise. Moins souvent - une table pour couper, dessiner, esquisser. En conséquence, quelques mètres carrés nous suffisent;

- À propos de l'hébergement armoire sur le balcon nous l'avons déjà dit. C'est presque parfait. Vous pouvez également travailler dans le salon si vous équipez un rebord de fenêtre pour cela, et placez plusieurs étagères autour de l'ouverture de la fenêtre. Il ne reste plus qu'à mettre une petite chaise. L'avantage de cette solution est un éclairage maximal;
- Si plus d'espace est requis, vous pouvez utiliser des tables équipées de roulettes et une aile sortante ou des tables de livre;
- Si le balcon a été combiné avec la pièce de telle manière que le bloc de balcon n'a pas été complètement démonté, mais qu'une «île» est restée, n'hésitez pas à l'utiliser comme espace de travail;

- À la salle de stockage, vous pouvez équiper les conditions nécessaires.
16. Ce qu'il NE FAUT PAS faire lors du développement d'un design de Khrouchtchev
Nous avons examiné les recommandations pour la conception d'un Khrouchtchev à une pièce. Maintenant, énumérons les quelques points qui sont les meilleurs. éviter à l'intérieur des petits appartements:
- N'utilisez en aucun cas des matériaux de finition avec des motifs larges ou similaires. Jetez un œil à la photo ci-dessous. Pour la décoration des murs, on a utilisé du papier peint en large bande, qui est collé sur plusieurs murs. Tout d'abord, l'intérieur a immédiatement commencé à fusionner, les bandes semblaient immenses et la pièce était petite. Deuxièmement, tous les efforts liés au réaménagement sont instantanément vains. Préférez les surfaces monophoniques;

- Sur la même photo, vous pouvez voir à quel point la pièce est sombre sans le bon niveau d'éclairage et à quel point les meubles sombres ont l'air grossiers;
- Évitez un grand nombre de petits objets de décoration;
- Vous ne devez pas choisir des nuances multicolores pour une arche de plafond - uniquement de couleur blanche. Sinon, le plafond appuiera instantanément sur la tête;
- Le meilleur revêtement de sol aura des tons gris clair ou blanc;
- N'utilisez pas de meubles inutiles et ne choisissez pas de modèles massifs.
En adhérant à des règles aussi simples, vous pourrez, sans aide extérieure, transformer votre Khrouchtchev précédemment détesté en une maison confortable dans laquelle vous souhaitez retourner après une dure journée.






Le bureau est équipé de roulettes, ce qui vous permet de le déplacer vers le centre du salon à l'arrivée des invités. Le cas volumineux est présenté par un modèle angulaire. Et le plus agréable est que la salle de bain a réussi à s'adapter à une baignoire entièrement rectangulaire en raison du fait qu'une plomberie étroite a été utilisée et 

De plus, il est équipé de rideaux occultants qui, même en plein jour, permettent une atténuation complète. Dans la chambre sous le mur, il y a une grande armoire avec des façades en verre. Cette technique permet de créer une perspective qui augmente visuellement l'espace. Un autre placard plus petit est situé dans le couloir. Le salon est combiné avec la cuisine, et à la frontière il y a un groupe de salle à manger. 




























