TOP 9: les meilleurs projets de garage avec une baignoire
Un garage et une baignoire peuvent-ils être adjacents? À première vue, l'idée peut sembler un peu frivole, car où le baintoujours là humidité élevée, et c'est fatal pour une voiture et des outils métalliques. Mais si vous approchez avec compétence processus de constructionalors des conséquences désagréables peuvent être évitées en ne retirant que des avantages. L'essentiel à cet égard est de choisir un projet de garage adapté avec bains publics et de prendre en compte les nombreuses caractéristiques de la construction d'un tel bâtiment. Arrêtons-nous sur les principales nuances et étudions les projets les plus intéressants.
La combinaison d'un garage et d'un bain sous un même toit présente de nombreux avantages:
- gain de place. Ces bâtiments sont une solution idéale pour petites zones suburbaines, où chaque mètre carré compte et où il faut aménager tous les bâtiments nécessaires pour qu'il y ait encore de la place pour un jardin ou un potager;
- économies de coûts. Fondationmur de communication le toit - tout cela sera courant et construire un grand bâtiment est beaucoup moins cher que deux séparés;
- fonctionnalité accrue des deux chambres. Bois de chauffage pour le four poêle dans le bain peut être stocké non pas dans la rue, mais dans le garage, ce qui signifie que vous n’avez pas à organiser un lieu de stockage supplémentaire avec un toit et à courir dans la rue pour le bois de chauffage. Grâce au système de chauffage nécessaire au hammam, il sera très facile d'entretenir un garage en hiver température confortable. De plus, les passionnés de voitures qui aiment bricoler dans le garage apprécieront la possibilité de se mettre en ordre rapidement, car la douche sera à distance de marche;
- variété de projets et esthétique de la construction. De nombreux propriétaires de maisons privées pensent qu'un garage et un bain sous un même toit sont une option beaucoup plus attrayante et esthétique que deux bâtiments séparés.

Pour profiter de tous les avantages d'une telle solution, il faut prendre en compte de nombreuses fonctionnalités. Bath - une pièce où il y a toujours une humidité élevée. Il est facile d'imaginer ce qui arrivera aux pièces métalliques si elles sont dans de telles conditions pendant au moins quelques mois. Cela signifie que lors du choix d'un projet de garage avec bains et pendant la construction, il est nécessaire prendre en compte les nuances suivantes:
- fournir fiable étanchéité, qui protégera tout ce qui se trouve dans le garage de l'humidité et protégera également les fondations des substances toxiques qui sont souvent stockées dans les garages;
- fournir fiable isolation thermique, et il ne s'agit pas tant de protéger le hammam du froid extérieur, mais d'isoler la baignoire du garage. Dans ces deux parties de la même pièce, un microclimat complètement différent sera créé, et afin qu'il n'y ait pas de condensation, de moisissure et de résolution ultérieure du mur, il doit être protégé de manière fiable. Idéalement, pour construire un double mur, et dans l'intervalle pour organiser un égout pluvial;
- fournir un système d'évacuation de l'eau;
- choisissez le bon matériau de construction. Les baignoires sont construites à partir de matériaux qui retiennent bien la chaleur et n'émettent pas de substances toxiques lorsqu'elles sont chauffées. Le matériau de construction du garage a présenté des exigences légèrement différentes. Il est important qu'il n'absorbe pas les substances toxiques.Il s'avère que l'arbre, idéal pour la construction d'un bain, ne peut pas être utilisé, car en raison de la structure poreuse, il absorbe instantanément les fumées nocives et perd rapidement son aspect attrayant. Regardez mieux sur le côté briques, mais ce matériau est assez cher, ce qui nécessite en outre la construction de fondation sérieuse. Vous pouvez économiser en utilisant blocs de mousse. Ils sont «plus chauds», plus légers, moins chers, n'ont pas peur des températures élevées, mais ils absorbent un peu l'humidité, ils nécessitent donc un traitement et une protection supplémentaires. Certains rusent et combinent le bois avec un bloc de brique ou de mousse.
Une salle de bain avec un garage sous un même toit est une construction assez compliquée, il est donc très important de prendre très au sérieux la conception d'un projet ou le choix d'une solution prête à l'emploi. La première chose à considérer est l'agencement de la pièce. En règle générale, le hammam et le garage sont situés au même étage, parfois la salle de repos peut être déplacée au deuxième étage. Il y a des projets avec un bain public au deuxième étage: les économies d'espace sont évidentes, mais les difficultés ne peuvent être évitées - le plancher du deuxième étage devra être très, très soigneusement isolé des fuites. En plus des bains publics et du garage, le bâtiment peut inclure une cuisine d'été, une terrasse ou un hozblok.
Portez une attention particulière à la facilité de mouvement d'une zone à l'autre, ainsi qu'à la facilité d'accès depuis la rue. Il devrait être facile d'entrer dans le garage, du garage il suffit d'aller au bain, et la zone de baignade devrait avoir sa propre entrée séparée, et il est souhaitable qu'elle soit orientée vers la maison.
La conception du garage avec une baignoire doit également inclure un schéma d'aménagement ventilation et communications techniques. En outre, des informations sur type de fondation, matériaux pour murs et toitures, type de finition. Il est plus facile et moins coûteux de choisir un projet existant (plutôt que de le compiler à partir de zéro) et, si nécessaire, apportez-y quelques ajustements pour l'adapter à vos besoins. Les solutions les plus réfléchies et intéressantes sont présentées dans notre sélection.
N ° 1. Projet de garage pour deux voitures avec baignoire et auvent
Le projet sera intéressant pour les membres de la famille 2-3 voitures ou les invités viennent souvent par leur propre moyen de transport. Certes, il y aura suffisamment d'espace pour la construction, donc cette option ne convient pas aux très petites parcelles - les dimensions du bâtiment sont de 12,23 * 13,37 m. Nous notons des caractéristiques du projet:
- place de parking spacieuse pour deux voitures (superficie 50,4 m2) Assez d'espace pour organiser un système de stockage pour le bois de chauffage, les outils nécessaires et même les outils de jardin
- fourni en plus abri d'autooù vous pouvez garer la troisième voiture;
- le bain est isolé du garage et a sa propre entrée par le vestibule;
- à côté du sauna il y a une salle de douche et une salle de relaxation (16,6 m2), où il sera facile de mettre le canapécouple fauteuils et une table;
- le projet fournit également chaufferie avec une entrée séparée;
- surface totale - 84 m2.
L'auteur du projet propose d'ériger un bâtiment à partir d'un bloc de céramique (il se caractérise par une haute résistance, durabilité et qualités d'isolation thermique), pour finir les murs stucet couvrir le toit tuile en métal. Cette solution est parfaite pour les grandes familles, ainsi que pour ceux qui aiment passer du temps dans une grande entreprise - il y a plus qu'assez de places de parking et d'espaces de loisirs.

N ° 2. Un petit garage avec un bain et une salle de relaxation
Il y a une place pour un tel garage même dans une petite zone (dimensions du bâtiment 8,7 * 7 m). Dans un espace aussi limité, nous avons réussi à placer tout ce dont nous avions besoin:
- place de parking pour voitures légèrement supérieure à 22 m2de sorte qu'en plus de la machine, des racks compacts conviennent également pour ranger les bagatelles nécessaires;
- garde-mangeroù les jardiniers peuvent stocker tuyaux, tondeuses à gazon et autres équipements, et les ménages - un stock de légumes, céréales et conservation. Si le garage ne parvient pas à organiser un endroit pour stocker le bois de chauffage, ils peuvent être mis dans le garde-manger;
- la salle de bain comprend le hammam lui-même, ainsi qu'une douche et une salle de bains;
- la salle de relaxation ici est petite, mais un canapé avec une télévision conviendra.
Le projet comprend la construction de murs de blocs de mousse ou blocs de gaz et leur suite finition brique et stuc. Malgré la superficie relativement petite de toutes les pièces, il sera possible de placer tout le nécessaire pour le repos et l'entretien de la voiture sans problème, et même d'organiser une petite zone de stockage.

Numéro 3. Projet de garage avec bains publics et buanderie
Ce projet peut être qualifié d'exemplaire en termes de fonctionnalité. À 128 m2 ici, il a été possible de placer un grand nombre de pièces avec différentes fonctionnalités:
- garage doubleoù même un transport dimensionnel suffisant conviendra;
- un vestibule, d'où vous pouvez accéder à la fois à la zone de travail et à la zone de repos. Si vous le souhaitez, un système de stockage peut être disposé dans le vestibule si quelque chose ne rentre pas dans le hozblok;
- buanderie spacieuse, que chaque propriétaire de voiture pourra utiliser à sa discrétion. Ici, vous pouvez organiser un atelier, un entrepôt de pièces de rechange ou de produits, stocker du matériel de jardinage. S'il n'y a pas besoin d'un hozblok, les locaux peuvent être transformés en salle de billard ou en petit gymnase;
- la zone de loisirs comprend un hammam et une buanderie de taille considérable, une salle de bain et une salle de détente.
Pour la construction, il est nécessaire d'allouer une superficie de 17,5 * 9,06 m - beaucoup, mais il sera possible d'équiper beaucoup d'espaces utiles.
Numéro 4. Projet de garage avec un manoir dans les combles
L'idée de placer la zone de baignade au deuxième étage peut considérablement économiser de l'espace sur le site, et si vous terminez la construction en tenant compte de toutes les exigences et normes, il ne devrait y avoir aucune fuite ni inondation. Les dimensions du bâtiment ne sont que de 13 * 8 m, mais la superficie totale est de 155 m2. Parmi les avantages de cette option, on note:
- grand garage pour deux voitures;
- garde-manger spacieux, accessible depuis le garage et la rue. Cet espace peut être utilisé pour ranger des outils, des outils de jardin ou des fournitures alimentaires, si vous le souhaitez, vous pouvez organiser un atelier;
- bain et espace détente sont situés au grenier, et vous pouvez vous y rendre depuis le garage et la rue par un vestibule commun;
- le grenier est presque une maison pleine, avec un seul amendement - tout est axé sur les loisirs et le divertissement. L'espace baignade se compose d'une salle d'eau, d'une salle de bain, d'un dressing et d'un sauna spacieux. Situé à proximité immense salonque l'auteur du projet propose d'utiliser comme salle de billard. Si vous le souhaitez, vous pouvez y installer plusieurs simulateurs, ou même vous débrouiller avec des meubles rembourrés et une télévision - selon le type de repos que vous aimez;
- comptoir de salle de repos - grand vitrage et accès au balcon;
- sans quitter le sauna, vous pouvez préparer le dîner, car il y a une place pour la cuisine, et sa superficie est plus grande que dans certains appartements de la ville. Si après les procédures et l'entraînement à l'eau, vous souhaitez vous allonger, à cet effet deux chambres.
Le projet est pensé dans les moindres détails et peut rappeler à quelqu'un plus une maison avec un garage et des bains qu'un garage avec une aire de loisirs. La différence réside dans la disposition et les accents - tout le premier étage est réservé pour un garage et un cellier, tandis que les maisons du rez-de-chaussée ont un salon, une cuisine et des chambres.

N ° 5. Projet de garage avec bains publics et atelier
Si plus tôt nous disions qu'un bain avec un garage sous un même toit économise de l'espace et convient aux petites surfaces, alors ce projet sera une exception à la règle. Ici, sous un même toit, la masse des pièces, qui forment finalement un pavillon entier pour les cours de loisir et de loisir. Sur une superficie totale de 133 m2 Le projet prévoit l'emplacement des zones suivantes:
- garage spacieux pour deux voitures, même les modèles dimensionnels conviendront;
- du garage il y a accès au générateur et atelier. Hélas, il n'y a pas d'éclairage naturel dans l'atelier, mais cette lacune peut être corrigée en échangeant cette pièce avec une salle de générateur. L'atelier sera une aubaine pour les fans de faire quelque chose de leurs propres mains.Si vous n'appartenez pas à cette catégorie de personnes, la pièce peut être utilisée comme garde-manger - pour 8 m2 il est possible d'organiser un tel système de stockage avec des étagères et des tiroirs qui correspondent à un approvisionnement solide en nourriture;
- beaucoup d'espace est prévu pour la chaufferie, de sorte qu'il sera complètement sûr d'y stocker une alimentation en combustible;
- la zone de garage avec la zone de loisirs est reliée par un long couloir qui a accès à la rue. Vous pouvez également entrer dans les bains par la terrasse, où se trouvent les entrées de la salle de relaxation et du four;
- une salle de bain, une salle de douche, et au cœur du projet, un hammam sont assez spacieux, donc la détente dans une grande entreprise est possible - chacun trouvera sa place;
- Salle commune de 24 m2 permet de placer en plus du canapé avec un téléviseur comptoir de bar ou une table de billard ou un tapis roulant;
- en été, vous pourrez vous détendre après les procédures de bain terrasse couverteoù vous pouvez mettre des chaises longues et / ou en osier meubles de jardin pour des collations au grand air.
Ce complexe aura fière allure sur un grand terrain où un manoir solide est construit. La construction deviendra à la fois un centre SPA, un territoire pour un stockage fiable des voitures et un lieu de loisirs dans l'atelier.

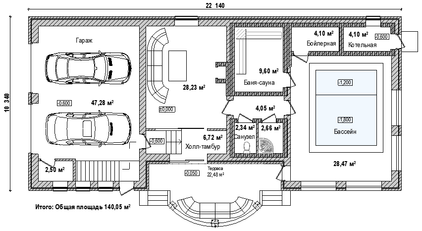
N ° 6. Projet de garage avec une baignoire et une piscine
C'est une option vraiment luxueuse, cependant, il sera possible de la réaliser s'il y a un grand terrain et des réserves financières suffisantes. Les fonctionnalités du projet comprennent:
- disponibilité piscine avec des zones de différentes profondeurs. Vous pouvez entrer dans la pièce avec la piscine directement depuis le hammam - les amateurs de procédures de bain devraient apprécier cette solution;
- espace sauna suffisant - une grande entreprise conviendra;
- grand salon;
- immense garage pour deux voitures;
- terrasse couverteoù vous pouvez obtenir à la fois de la salle de relaxation et de la piscine. Cet espace peut être équipé de chaises longues afin que vous puissiez vous reposer et vous détendre le plus possible;
- masse de locaux techniques pour accueillir les systèmes de communication et de stockage nécessaires.
Si la superficie et les fonds le permettent, la construction d'un tel bâtiment éliminera à jamais la nécessité de louer un sauna pour se détendre après une semaine de travail acharnée, car tout sera juste sous la maison.
Numéro 7. Projet de garage universel avec baignoire
Le projet peut être utilisé même sur des sites peu importants. En raison de la disposition réfléchie des locaux du bâtiment avec des dimensions de 11,2 * 7,2 m, les zones suivantes conviendront:
- garage double, il y a aussi un endroit pour stocker le bois de chauffage;
- sauna avec douche et salle de relaxation compacte;
- un petit vestibule, d'où vous pouvez entrer à la fois dans le garage et la salle de bain.
Il n'y a rien de superflu dans le projet, mais tout le nécessaire pour garer une voiture et se détendre est présent. Parfait!
Numéro 8. Projet de garage avec sauna et barbecue
Ce projet prévoit l'aménagement de tout un complexe de loisirs: il est arrivé, a installé une voiture, cuit à la vapeur dans un bain, barbecue, mangé à l'air frais, et encore cuit à la vapeur dans un bain. En général, le temps peut être dépensé intelligemment. Parmi les caractéristiques du projet, on note:
- place pour deux voitures;
- grand espace barbecue avec cuisine d'été. Ce territoire ne restera certainement pas inactif. Sur la terrasse couverte par tous les temps, il sera possible de préparer un délicieux déjeuner ou dîner, de devenir gris en compagnie d'amis ou de parents et de se reposer après les procédures de l'eau;
- La zone SPA se compose d'un hammam, d'une douche, d'une salle de bains et d'un salon. Si vous le souhaitez, le hammam avec douche peut être changé - ce sera encore plus pratique;
- Pour assurer le fonctionnement de toutes les zones du garage, une chaufferie et une buanderie sont prévues, où même une petite zone de stockage conviendra.

N ° 9. Projet de garage avec sauna et véranda
Ce projet rappelle quelque peu le précédent, mais la disposition des pièces ici est quelque peu différente. Sur une superficie totale de 92,6 m2 l'auteur du projet propose de placer:
- garage pour deux voitures;
- une petite buanderie pouvant être utilisée comprenant pour stocker du bois de chauffage;
- dressing, qui est situé à une distance suffisante du garage, car ici, il sera possible de stocker des vêtements même pendant une période suffisamment longue - il ne sentira pas les vapeurs d'essence et d'autres substances qui sont constamment présentes dans le garage;
- hammam, salle de douche et salle de bain;
- salon avec accès à la véranda;
- spacieux la vérandaoù le gros s'adapte facilement table à mangerpour lequel une grande entreprise peut se réunir. Un week-end ou des vacances, vous et vos invités serez ravis de pouvoir, sans quitter les frontières de votre territoire, prendre un bain de vapeur et manger au grand air.

Choisir un projet n'oubliez pas de considérer la configuration du site, ainsi que les exigences relatives à l'emplacement du garage sur le territoire. De celui-ci aux murs de la maison doit être d'au moins 3 m, de sorte qu'en cas d'incendie, un équipement spécial puisse passer. Du garage à la bordure du site doit être d'au moins 1 m, aux fenêtres de la maison voisine - 6 m. Bien sûr, il est plus pratique de concevoir tous les bâtiments sur le site en même temps, mais, espérons-le, si vous avez tous les bâtiments principaux, vous pouvez trouver un projet approprié parmi ceux ci-dessus .













