Maison en bois - le coût de la construction
Les maisons en bois sont une sorte de retour aux origines de la construction verte. Après tout, seul le bois contribuera à créer un microclimat naturel unique dans la maison. Et dans certains cas, il n'a même pas besoin d'être fini, car la maison se révélera belle et sans fioritures de designer. Mais combien coûte la construction d'une maison en bois vous-même?
Tout d'abord, vous devez estimer le coût d'achat d'une maison «clé en main» afin de comprendre combien vous économiserez en faisant vous-même la construction. En outre, lors du calcul, gardez à l'esprit que vous devrez acheter un terrain sous IZHS, c'est-à-dire déjà avec des documents.
Pourquoi exactement un bar?
Raisons de décider de construire une maison en bois:
- À l'intérieur d'une telle maison, il fera toujours chaud, car le design est élevé indicateurs d'économie d'énergie.
- Murs en bois absorber l'humidité, puis la donner si l'air devient sec, ce qui garantit un microclimat sain.
- La barre résiste à la pourriture, aux dommages causés par les insectes et champignons grâce à une imprégnation antiseptique spéciale.
Quel type de bois est utilisé dans le logement?
Pour décider du coût de construction d'une maison en bois, le type de matériau de construction doit être pris en compte:
- Profilé non collé. Des rainures sont prévues dans les produits, assurant des joints serrés. Cette barre se caractérise également par un faible taux de retrait. Dans la maison, qui est assemblée à partir d'éléments prêts à l'emploi selon le principe du concepteur, une ventilation naturelle est assurée. Ce type de matériel est considéré comme le plus économique.
- Poutre collée profilé. Combien coûte la construction d'une maison à partir de poutres collées? Deux fois plus cher que non collé - en raison du fait que le matériau dans le processus de préparation passe par plus d'opérations technologiques, y compris le séchage, le profilage, la préparation ignifuge et antiseptique. Une telle maison est assemblée rapidement, car tous les détails sont équipés d'une précision géométrique maximale. De plus, ne nécessite pas de travaux de finition supplémentaires. Cependant, la plupart des projets à partir de poutres collées sont typiques. Un dispositif de ventilation forcée est également nécessaire.
- Thermobar. Il s'agit d'une poutre profilée collée, complétée par une mousse de polystyrène - isolation. Il se caractérise par un retrait minimal et peut être utilisé dans la plage de température jusqu'à -50 ° C. Le matériau n'est pas considéré comme "respirant" et plus cher que le bois collé de 20%.
Comment les éléments de construction affectent le coût
Naturellement, vous ne pourrez pas calculer vous-même le coût de construction d'une maison à partir d'une poutre si vous n'avez pas de projet. Il est moins cher d'acheter un projet standard qui a déjà été testé par les développeurs. Le projet prend nécessairement en compte des aspects tels que la superficie de la maison, le style de la structure, la disposition des pièces et les services publics. D'autres travaux sont effectués séquentiellement:
- analyse des sols sur le site, sélection d'un type de fondation adapté;
- construction de fondations;
- circuit de l'appareil, la première couronne;
- assemblage de maison en rondins;
- installation du plancher rugueux;
- érection d'un toit;
- isolation extérieure;
- dispositif de plafond;
- installation de portes et fenêtres;
- pose de réseaux d'ingénierie.
Étape finale - terminer. Si la maison est faite de poutres collées, elle peut être démarrée immédiatement. Dans tous les autres cas, ils prennent une pause de 6 mois pour rétrécir la maison.
À chacune de ces étapes, différents matériaux de construction sont utilisés, dont dépendra l'estimation finale. Engagé dans la construction d'une maison par vous-même, vous économiserez autant que le coût des travaux, mais uniquement à la condition que vous puissiez tout organiser et exécuter correctement.
Étapes de construction et matériaux
Pour les maisons en bois peuvent être utilisées:
- pile;
- en colonne;
- fond de teint en bande.
En conséquence, le coût de piles, raccords, bétonmatériel d'expédition. Le niveau d'approfondissement de la fondation est obligatoire pris en compte - dans la plupart des cas, il est de 500 à 600 mm.
Quant aux murs, le coût dans ce cas dépend de la complexité du projet et du type de matériau utilisé. En règle générale, 50% de plus sont prélevés pour la fabrication de composants à partir de matières premières européennes. L'achat d'un kit pour la construction d'un chalet typique en bois sera à moitié prix que l'installation clé en main de l'immeuble. Mais non seulement le fabricant de la barre affecte, mais aussi les paramètres du profil du matériau.
Le type et la hauteur du toit érigé sont également importants - la quantité de bois utilisée en dépend. Le coût d'un matériau de couverture adapté est également pris en compte.
Et encore une chose - pour économiser de l'argent, vous pouvez attendre la fin de la saison et acheter des matériaux en vente de manière rentable. Mais c'est à vous de décider si vous êtes prêt à étirer autant le projet.
7 projets intéressants de maisons en bois
Lorsque vous construisez une maison à partir d'une maison en rondins, vous ne pouvez pas réinventer la roue et ne pas dépenser beaucoup de temps et d'argent pour développer la vôtre le projet, et utilisez celui prêt à l'emploi, qui répondra à toutes les exigences autant que possible. Voici quelques conceptions de maisons en bois intéressantes et complètement différentes qui pourraient certainement vous intéresser.
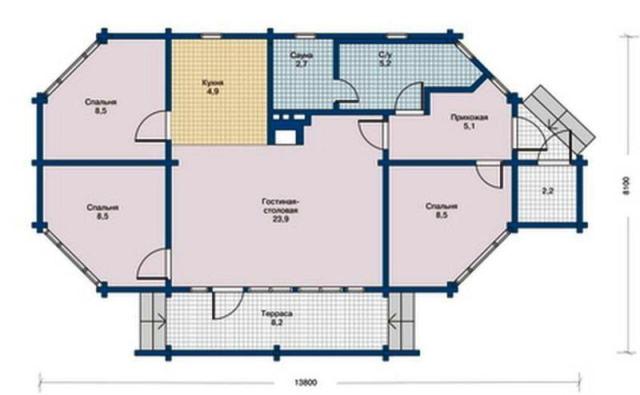
N ° 1. Projet de maison "Famille"
L'un des plus des options simples mais efficaces maisons en bois. Il s'agit d'un projet de maison à un étage, parfait pour des vacances en famille en dehors de la ville ou pour y séjourner en permanence. Tous les locaux nécessaires sont agencés ici de manière suffisamment compacte et pensée pour qu'à la fin la construction ne prive pas de ressources financières et de temps inutiles et que la maison finie soit fonctionnelle et pratique.
Le projet prévoit un petit hall d'entrée, qui mène à un spacieux salon-salle à manger et une salle de bains. À côté du salon, il y a une petite cuisine, dont le but est uniquement de cuisiner, et le petit déjeuner, le déjeuner et le dîner peuvent déjà être dans la salle à manger avec de grandes fenêtres, il a également accès à la terrasse, donc pendant les mois chauds, vous pouvez déplacer les dîners et là. Le projet prévoit la présence de trois chambres, chacune pouvant se transformer en crèche. Chaque chambre a une immense fenêtre d'angle pour profiter au maximum de la lumière naturelle. Mais ce n'est pas tout. Il y a endroit pour sauna, accessible depuis la salle de bain. Super option d'une maison de campagne.
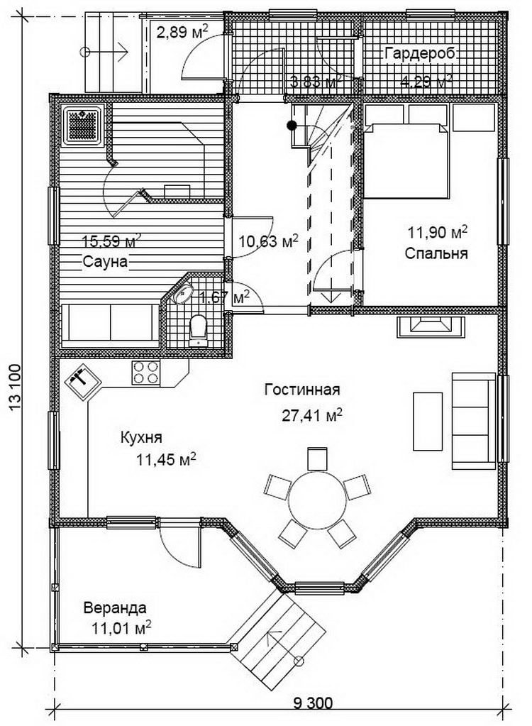
N ° 2. Le projet d'une maison de campagne "Terem"
Un autre merveilleux option grande maison familialequi préfère se détendre tous ensemble. Une maison construite sur un tel projet sera pratique et deviendra une véritable décoration de toute zone suburbaine. Au rez-de-chaussée il y a un hall d'entrée et dressing, où il est facile de ranger non seulement toutes les choses nécessaires, mais aussi quelques accessoires pour le jardinage. La décoration du rez-de-chaussée est un salon spacieux, qui joue le rôle de salon et de salle à manger, car il est relié à la cuisine. Par beau temps, vous pouvez transférer le repas à la véranda, dont l'accès est présent depuis la cuisine. De plus, le projet du rez-de-chaussée prévoit l'emplacement salle de bain spacieuse avec saunace sera un endroit idéal pour se détendre. Également au rez-de-chaussée, il y a une disposition d'une chambre.
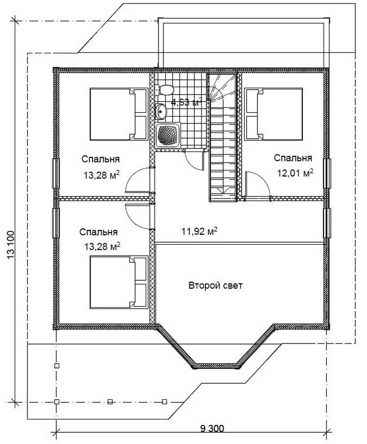
Du premier étage au deuxième conduit escalier. Au deuxième étage, il est proposé d'aménager trois chambres: c'est pratique quand il y a toujours beaucoup de monde dans la maison ou quand la famille est grande.La polyvalence de ce projet de maison est qu'il s'adapte parfaitement à la fois pour les conditions de construction de banlieue et comme logement permanent dans la ville.
Numéro 3. Projet de maison "Country"
La disposition de la maison pour ce projet est idéale pour la construire sur un chalet d'été. Il enlève un minimum d'espace seulement 7,5 * 10,5 mmais sa disposition permet disposer de manière compacte toutes les zones nécessaires. L'entrée de la maison mène au vestibule, qui mène à un salon spacieux. Contrairement à de nombreux autres projets d'une maison d'un bar, il fournit ici cuisine séparée avec coin repasqui n'est pas combiné avec le salon. De la cuisine et du salon, il y a des portes sur la terrasse pour manger en plein air - idéal pour chalets, et de la cuisine pour emporter des plats cuisinés à proximité. De plus, au rez-de-chaussée il y a une salle de bain et deux petites chambres.
Dans le grenier, il y a deux autres chambres et un grand balcon, sur lequel vous pourrez également vous détendre pendant la saison chaude. Une excellente option pour ceux qui aiment passer du temps dans une grande entreprise, car tout le monde y trouvera sa place, semble-t-il, pas une si grande maison.
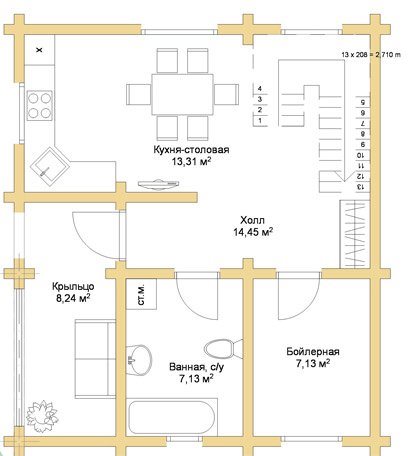
Numéro 4. Projet de la maison Joukov
Une maison confortable et économique qui a l'air plus que solide. Grâce à sa disposition réfléchie, la maison peut être aussi permanente logement à l'année, ainsi qu'une maison de campagne pour un séjour saisonnier. Il fournit tout le nécessaire à la vie. La cuisine-salle à manger, qui peut accueillir un nombre considérable de personnes, occupe une place importante au rez-de-chaussée. Il y a aussi une salle de bain et une chaufferie, et un escalier mène au deuxième étage. Il y a une chambre spacieuse et un salon, qui la nuit peut se transformer en une autre chambre. Au deuxième étage est prévu grand balconce qui pourrait être un autre lieu de vacances.
N ° 5. Projet de la maison "Compact"
Ce projet comprend la construction de la maison la plus compacte et fonctionnelle qui convient pour une petite famille. Sa superficie est de 57 m2d'entre eux surface habitable - 33 m2. Une caractéristique distinctive de la maison est une grande terrasse couverte, qui peut être utilisée comme lieu de repos. Dans la maison elle-même, il y a un petit hall d'entrée, un salon spacieux avec cuisine et coin repas. Il y a aussi une petite chambre, une salle de bain et un sauna. De grandes fenêtres rendent la pièce lumineuse et confortable. Grâce à la façade d'origine, la maison deviendra une décoration du site.
N ° 6. Projet de maison "Chic"
Grande maison pour une grande famille, qui peut devenir une parure de banlieue ou jouer le rôle de logement permanent. Pour un séjour confortable, il y a tout ce dont vous avez besoin, et plus encore. La façade de la maison est élégante et attrayante, et la disposition est parfaite. Le premier étage comprend un hall d'entrée spacieux où toutes les choses nécessaires de toute la famille s'adapteront. Un immense salon lumineux entre dans la cuisine. La zone de la cuisine permet non seulement d'y cuisiner, mais aussi d'y manger. De la cuisine il y a une porte vers la terrasse, ce qui est très pratique, car vous pouvez très rapidement sortir tous les plats préparés pour une collation à l'air frais. De plus, le spacieux rez-de-chaussée vous permet d'y placer librement chaufferie, bain, armoire et garage - Une excellente option pour les hommes d'affaires qui apprécient le confort en tout.
Un escalier relie le premier étage au deuxième, sur lequel il y a un hall et trois chambres très spacieuses avec d'immenses fenêtres. Fonctionnalité du projet – deuxième lumière, c'est-à-dire il n'y a pas de plafond sur une partie des locaux du premier étage, et le plafond pour eux devient le plafond du deuxième étage. Cette technique vous permet de rendre l'intérieur de la maison plus spacieux, aéré et lumineux.
Numéro 7. Projet de la maison "Surprise"
Nous avons devant nous un projet qui deviendra une véritable trouvaille pour tous ceux qui aiment se détendre de manière intéressante et utile, sans quitter la maison. Il est parfait pour une zone de banlieue, mais pour une résidence permanente plus que ne le fera. La superficie totale est supérieure à 280 m2, et la principale caractéristique de cette maison est trois étages disponibles. Alors le rez-de-chaussée comprend un sauna, une salle de billard, une baignoire et un certain nombre de pièces auxiliaires.
Au rez-de-chaussée il y a un salon spacieux, une immense cuisine de salle à manger avec accès à la terrasse: le projet, comme beaucoup d'autres, prévoit une sortie simple et rapide de la cuisine à l'air pour y organiser des dîners - vous n'aurez pas à faire le tour de toute la maison avec des assiettes. Au rez-de-chaussée il y a également une chambre, une salle de bains, un dressing et un hall avec un escalier menant au deuxième étage. Il y a deux autres chambres et une salle de bain. Une telle maison est une excellente option pour toutes les occasions.


































