TOP 11 projets de maisons en blocs de mousse avec grenier
Être chez soi est le rêve de beaucoup d'entre nous. Il semblerait que lorsque le montant nécessaire a été accumulé et le terrain acheté, vous pouvez respirer en toute sécurité. Mais ça y était! Après tout, il est maintenant temps de choisir le matériau, le projet et la mise en page. De plus en plus, les développeurs privés s'arrêtent à bloc de mousse. C'est un matériau chaleureux, durable et respectueux de l'environnement qui vous permet de construire rapidement une maison dans n'importe quel style architectural. Malgré toute la variété des possibilités, de nombreuses personnes préfèrent construire des maisons avec un grenier. Il s'avère magnifiquement et économiquement - une maison à deux étages est plus chère. Nous avons trouvé plusieurs conceptions intéressantes de maisons à partir de blocs de mousse avec un grenier, qui diffèrent par leur disposition et leur superficie, afin que chacun puisse trouver une option pour tout le monde.
Fait intéressant, à l'époque soviétique, le béton cellulaire n'était pas très bien traité. La raison est simple. Il coûte plus cher que le béton ordinaire, et propriétés uniques d'isolation thermique n'a pas fait attention - les liquides de refroidissement étaient bon marché. Aujourd'hui, la faible conductivité thermique du béton mousse, due à la structure du matériau, est devenue la principale raison de la croissance de sa popularité. De plus, le bloc de mousse est différent poids léger, durabilité, résistance au feu, respect de l'environnement et prix relativement bas. Des maisons en sont construites rapidement, et la simplicité de traitement vous permet de mettre en œuvre tous les projets.
Les projets les plus populaires sont les maisons avec grenier. Avec la même surface que maison à un étage, un bâtiment avec un grenier occupera moins d'espace sur le site - vous pouvez économiser sur fondation. Par rapport à une maison à deux étages, la construction coûtera moins cher. Une maison avec un grenier est confortable à l'extérieur et son espace intérieur est commodément divisé en zones: le premier étage est un espace public (salon, cuisine, salle à manger, dressing) et le grenier est un espace privé avec chambres et enfants. La popularité de ces demeures a généré une grande variété de projets finis - vous trouverez certainement l'option la plus appropriée pour vous. Un projet fini est beaucoup moins cher et plus pratique qu'une conception individuelle.
N ° 1. Maison avec grenier "K-197"
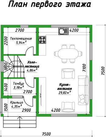
Une telle maison satisfera les exigences de la plupart des familles pour une maison confortable et réfléchie. Classiquement, tout son espace peut être divisé en deux zones: jour et nuit. Le jour ou l'espace public est représenté par un immense salon, qui coule en douceur dans la cuisine - aucune cloison n'est prévue. A proximité se trouve le hall, qui combine une armoire, une salle de bain et un local technique.
Le grenier est trois chambres, dont deux sont équipées de niches pour la disposition des armoires. À une distance égale de toutes les chambres se trouve une grande salle de bains. Tout est pensé pour une vie de famille confortable avec des enfants. De plus, la maison peut être utilisée comme résidence de campagne. Le projet peut généralement être appelé universel. Surface totale 119 m2.
Tous les détails sur ce projet d'un bâtiment d'un demi-étage en blocs de mousse se trouvent sur le site du service Houmy. Le portail propose des milliers de conceptions de maisons différentes à partir de différents matériaux. Tous les projets ont été créés par des architectes professionnels et pensés dans les moindres détails. Il suffit à l'utilisateur de trouver la solution la plus intéressante en utilisant les filtres intégrés et, si désiré, de faire quelques ajustements au projet.Sur le site Web du service, vous pouvez contacter différents entrepreneurs et trouver une entreprise qui vous offrira les conditions de construction les plus favorables.

N ° 2. Projet "Economie"
Est-il possible de superficie 64 m2 poster quatre chambres et tous les autres locaux nécessaires à la vie? Oui, si vous approchez correctement la planification de l'espace. Au rez-de-chaussée de cette maison confortable, ils proposent d'agencer la cuisine et de la combiner avec le salon. La zone qui leur est allouée est petite, mais il ne devrait pas y avoir de problèmes particuliers dans l'emplacement de tout ce qui est nécessaire. Dans les environs immédiats, il y a une chambre et une salle de bains, ainsi qu'un vestibule, où un endroit pour stocker les choses est fourni, ainsi qu'un local technique compact, qui peut être utilisé comme chaudière domestique.
Les trois autres chambres devraient être situées au étage mansardé. Tous ont une superficie approximativement égale. Naturellement, il y a une salle de bain à proximité, dont la zone vous permet d'installer une baignoire et une douche complètes. Le point fort du projet est l'accès à la terrasse depuis le salon. Si vous équipez le territoire voisin, vous pouvez déjeuner et dîner en plein air - pour apporter des plats cuisinés à proximité. Une telle maison peut être utilisée comme résidence permanente et comme option rurale.

Numéro 3. Projet familial
Ce projet a plusieurs fonctionnalités intéressantes. Le premier est cheminée. Deuxièmement, deux sorties sur la terrasse. Troisièmement, près de la cuisine est fournie petit garde-mangerde sorte que toutes les fournitures d'épicerie seront où se cacher. La disposition inhabituelle de la zone de jour attire également l'attention sur lui-même. Il suffit de regarder à quel point la cuisine, la salle à manger et le salon sont bien situés - il n'y a pas de cloisons entre eux, mais les limites claires de chaque zone sont toujours visibles. L'espace restant est réservé aux locaux techniques.
L'aménagement du grenier n'était pas moins intéressant. La chambre avec accès au balcon est destinée aux propriétaires ou aux invités les plus chers. L'absence de balcon dans les deux autres chambres est compensée par une superficie accrue. Surface totale - 130 m2.

Numéro 4. Le projet Neat
Total surface de la maison 116 m2dont 17 m2 Attribué au garage. La construction de la maison est assez simple, donc la construction sera bon marché et rapide. Au garage relié au hall d'entrée de la maison. Le premier étage est entièrement consacré aux locaux techniques et publics. Son centre est le salon avec accès à la rue. La cuisine possède la présence d'une buanderie, de sorte qu'à la maison, vous pouvez toujours stocker une réserve de céréales, de légumes, d'épicerie, etc.
Il vaut la peine de féliciter les concepteurs pour le fait qu'au rez-de-chaussée, avec trois chambres, ils fournissaient deux salles de bains - vous pouvez éviter les files d'attente le matin et le soir. Le résultat est une maison petite, mais dans les moindres détails, pensée avec tout ce dont vous avez besoin. Si vous le complétez piscine dans la cour, alors ce sera complètement cool.

N ° 5. Projet Merida
La maison construite sur un tel projet peut être qualifiée de chic. Le bloc de mousse est un matériau pratique, mais hélas pas très esthétique donc sans décoration de façade ne pas s'entendre. Dans ce cas, il nous est proposé de combiner le stuc et la doublure, de sorte qu'au final, nous obtenons une maison dans le style alpin. Cependant, la maison conquiert non seulement l'option de revêtement proposée, mais aussi une disposition soigneusement pensée.
Sur la place 144 m2 (ce qui n'est pas tellement) le designer a réussi à placer cinq chambres et autres pièces nécessaires à la vie, et ce ne sont pas des visons, mais des espaces à part entière. Le salon est traditionnellement combiné avec la cuisine et a accès à la terrasse. Ce dernier s'est avéré être très grand, vous pouvez donc facilement y placer plusieurs zones de loisirs. A côté de la salle de bain et chaufferie au rez-de-chaussée est prévu dressing - de nombreuses familles apprécieront.
Cinq chambres étaient réparties entre les étages: une - au premier, le reste - dans le grenier. Fait intéressant, les quatre chambres supérieures sont de taille égale, de sorte que les guerres pour la meilleure chambre peuvent être évitées. Bien sûr, le grenier a sa propre salle de bain.Compact et réfléchi.

N ° 6. Projet "Maison avec garage"
En général superficie 173 m2 Il n'y a pas beaucoup de pièces à vivre dans cette maison. Ce projet est destiné à ceux qui apprécient l'espace. La première caractéristique de la maison est la présence d'un sous-sol. Les concepteurs ne disent pas à quoi elle est destinée, afin que chacun puisse utiliser cette pièce à sa guise. Les vrais propriétaires y organisent une cave, les cinéphiles organisent un home cinéma et les athlètes organisent une petite salle de gym.

Le projet plaira également aux vrais automobilistes, car il y a non seulement une place pour un garage, mais aussi une pièce spacieuse pour ranger tout le nécessaire pour une voiture. Le centre du premier étage sera le salon, que les concepteurs proposent de séparer de la cuisine comptoir de bar. Veuillez noter que la cuisine a accès à la rue.
Le projet prévoit trois chambres: deux - dans le grenier, une - en bas. Ce dernier est mieux utilisé pour la pépinière. Chaque étage a sa propre salle de bain. Dans un tel manoir, il sera confortable pour tous les ménages et leurs invités.

Numéro 7. Projet "Lux"
Un projet avec un nom qui parle. Si vous avez une grande famille, ou si vous voulez construire un chalet pour des vacances dans une compagnie d'amis bruyante, alors ce projet vaut vraiment la peine d'être considéré. Une partie du premier étage garage avec un petit atelier. Dans ce document, vous pouvez stocker tous les outils nécessaires pour la réparation automobile, les outils de jardinage et autres choses nécessaires à la maison. Quelqu'un veut transformer l'atelier en garde-manger, et quelqu'un veut supprimer complètement le mur et faire un garage pour deux voitures. Le garage est connecté à la maison: il est pratique d'apporter tous les achats / choses / biens de la voiture dans la maison.

Les fonctionnalités du projet incluent la disponibilité baie vitrée, qui a été créé pour y être installé table à manger. La cuisine est combinée avec le salon, mais si vous le souhaitez, une cloison peut être construite sans problème. Si vous le souhaitez, les dîners en famille peuvent facilement être passés sur la terrasse. Il est intérieur et petit, et si son espace semble petit, vous pouvez utiliser le territoire du site. Le reste du rez-de-chaussée est occupé par des locaux auxiliaires et un petit bureau.
Des surprises nous attendent lorsque vous vous familiarisez avec l'aménagement du deuxième étage. Une des chambres a reçu un dressing et la salle de bain est équipée d'une pièce supplémentaire. Il peut être transformé en buanderie ou transformé en sauna. Près du sauna, ce serait bien d'avoir une salle de billard ou une salle de gym. S'il te plait! Il peut être aménagé à l'intérieur au dessus du garage. Total superficie - 242 m2.

Numéro 8. Projet Luton
Une telle maison décorera le site et confirmera le bon goût des propriétaires. L'apparence est complétée par une mise en page bien pensée. De toute évidence, la maison est conçue pour une petite famille, car il n'y a que deux chambres. Agréablement satisfait du fait qu'il y ait un balcon au grenier et que l'accès soit accessible à tous. Si vous le souhaitez, vous pouvez mettre une petite table pour le petit déjeuner et les collations.
Tous les ménages et invités peuvent se rassembler au rez-de-chaussée dans le salon, qui coule en douceur dans la salle à manger, et cela, à son tour, dans la cuisine. Veuillez noter que les fenêtres du hall donnent sur les trois points cardinaux, afin que les rayons du soleil puissent être utilisés au maximum. Il convient de noter l'absence de salle de bains au rez-de-chaussée, mais apparemment, les auteurs du projet ont estimé qu'il n'y avait pas besoin d'un petit nombre de résidents. Si néanmoins un besoin se fait sentir, une partie du local technique peut être transformée en petite toilette. Total surface de la maison - 100 m2.

N ° 9. Projet "Maison avec terrasse ronde"
Si de nombreux projets semblent trop ennuyeux précisément en raison de leur géométrie et de leur clarté strictes, vous devriez aimer cette option. Les concepteurs proposent de finir la façade avec des briques de parement, et dans la cour arrière d'équiper une terrasse ronde avec des marches. Par une belle journée chaude, dîner avec toute la famille y sera un plaisir. Le site peut être équipé d'un grand parasol, ou mettre quelques chaises longues, placer plusieurs fauteuils en rotin artificiel et une jolie petite table. La terrasse a accès à un grand salon, qui est combiné avec un coin repas et une cuisine. Si vous le souhaitez, la cuisine peut être séparée par une cloison. La table à manger aura fière allure baie vitrée - c'est une autre caractéristique du projet.
Près de la salle de bain et du salon au rez-de-chaussée se trouvera un bureau compact ou une bibliothèque. Chaufferie et garage combinés. Ce dernier est relié au couloir par une porte séparée - tout est pensé. L'étage mansardé a reçu une décoration en forme de balcon, cependant, l'accès ne se fait qu'à partir de deux chambres. Total surface de la maison - 122,5 m2.

N ° 10. Projet royal
Cette solution convient à ceux qui souhaitent souligner leur statut à la maison. Un tel manoir sera rentable regardez le site et conquérir son propriétaire avec une mise en page réfléchie. Les concepteurs ont décidé d'équiper la maison d'un garage pour deux voitures, car quel statut sans personne! Il est difficile d'imaginer un homme d'affaires sans bureau à domicile, il est donc également prévu par le projet. Presque le reste de l'espace au rez-de-chaussée se trouve dans un salon luxueux avec baie vitrée vitrée au sol. C'est un super endroit pour avoir une salle à manger. Nous avons décidé de ne pas nous arrêter ici. Un excellent ajout au salon est une cheminée. De longues soirées d'hiver peuvent être passées près de lui, et quand il fait beau, vous pourrez vous détendre sur la terrasse. La cuisine est située très près, de sorte que les plats cuisinés ne refroidissent même pas pendant le transport.
Dans le grenier, ils proposent de faire quatre chambres assez spacieuses et une salle de bain. Cependant, vous pouvez apporter des modifications au projet et remplacer l'une des chambres par une salle de bain supplémentaire, voire un sauna. Total superficie - 239 m2.

N ° 11. Projet pratique
Un projet de petite maison complète notre évaluation superficie 118 m2. Une telle maison plaira particulièrement aux personnes qui peuvent se vanter d'une grande armoire. Pourquoi? Oui, car les deux chambres du grenier sont équipées de leurs propres dressings, et même quoi! Près de 5 m2 chacun. En plus de choses, des articles nécessaires tels qu'un aspirateur, une planche à repasser, des valises, etc. peuvent facilement y être installés.
La troisième chambre est en bas. Il est préférable d'équiper une crèche ou une chambre pour une personne âgée. Chaque étage dispose d'une salle de bain. Le salon a eu accès à une immense terrasse et a décidé d'économiser sur le coin cuisine. Selon l'idée des concepteurs, une cuisine n'est nécessaire que pour accueillir tout ce qui est nécessaire uniquement pour cuisiner. Des déjeuners et dîners sont proposés pour être organisés dans la salle à manger, ou même dans la rue. La présence d'une cheminée tombe enfin amoureuse de ce projet.

Chacun des projets présentés peut être légèrement modifié par vous-même. Ainsi, vous recevrez la solution la plus appropriée pour un minimum d'argent, car la création d'un projet à partir de zéro, sur une commande individuelle, se traduira par un montant décent.










