TOP 11 projets de garage avec grenier
À quoi ressemble un garage typique? Il s'agit d'une structure primitive à un étage, dont la construction prend en compte deux facteurs principaux: la rentabilité et la fonctionnalité. De tels garages-box font parfaitement leur travail, mais si vous ajoutez un loft au-dessus du garage, vous pouvez obtenir un bâtiment beaucoup plus fonctionnel et en même temps dépenser beaucoup moins d'argent. Nous avons sélectionné les projets de garage les plus intéressants avec un grenier afin que vous compreniez à quel point une telle solution peut être pratique.
Chambre mansardée au dessus du garage adapter à diverses fins. Si vous aimez réparer quelque chose, l'atelier du grenier sera votre trouvaille. Les amateurs de sport peuvent organiser une petite salle de sport au-dessus du garage. Une autre option populaire est une salle de relaxation avec canapé moelleuxfauteuils TV et, par exemple, une table de billard. Une telle solution plaira à tous ceux qui aiment organiser des rassemblements avec des amis dans le garage. Le deuxième étage peut être adapté à la cuisine, équiper une chambre avec salle de bain, faire une place pour les invités ou le personnel.
La chambre mansardée peut même utiliser comme bain. Là, vous pouvez organiser dressing ou garde-manger, c'est-à-dire Utilisez l'espace de stockage. En général, le but du grenier dépend entièrement de vos besoins. Mais vous devez immédiatement décider de ce qui sera au-dessus du garage, car vous devrez penser à l'emplacement des communications, et si le grenier est résidentiel, alors fournir réchauffement.
Un garage avec un grenier est un excellent moyen d'obtenir un espace utilisable supplémentaire avec un investissement minimal. Fondation et le toit ils seront courants, les dépenses supplémentaires seront faibles si vous les comparez à la construction d'un bain, d'un atelier ou d'une cuisine séparés, par exemple. Bien sûr, la complexité de la construction augmente légèrement, il est donc très important de choisir le bon projet. Arrêtons-nous sur les solutions les plus intéressantes.
N ° 1. Projet de garage avec grenier résidentiel
Ce projet peut être considéré comme une référence. Il prévoit l'installation d'une fondation en bande avec la construction de murs à partir de blocs de mousse ou béton cellulaire et leur face tuiles de clinker. Parmi les principales caractéristiques du projet, on note:
- place pour deux voitures. La superficie de la zone de stationnement est de 36 m²;
- devant la porte du garage il y a zone couvertequi peut être utilisé pour le stationnement de courte durée ou pour placer les voitures des invités;
- le grenier est un espace de vie complet avec grande chambre (36 m²) et une salle de bain assez spacieuse;
- un petit hall au grenier peut être aménagé en salon.
La construction achevée sur ce projet pourra combiner un garage et une maison d'hôtes - commodément, magnifiquement et économiquement. La superficie totale est de près de 115 m².


N ° 2. Projet de garage avec un grand grenier
Il est difficile de dire à quoi ressemble cette construction: une maison avec garage ou un garage avec logement.Cependant, est-ce si important si le projet propose de construire un bâtiment bien pensé qui séduit par la fonctionnalité et l'esthétique. Bardage tuiles de clinker avec tuile en métal Il a l'air élégant. Le garage est adapté à des zones assez grandes, car sa taille est de 12,3 * 8 m. Dans cet espace, il a été possible de placer les zones suivantes:
- garage deux voitures avec deux portes séparées. Il y a tellement d'espace qu'en plus des grosses voitures, plusieurs casiers conviendront pour ranger les outils et les petites choses;
- Chaufferie de 15 m2;
- deux chambreschacun d'une superficie de 13,65 m2 - pas beaucoup, mais rappelons que nous avons devant nous un projet de garage, pas de maison à part entière;
- également au grenier est situé cuisine-salon, dont le point culminant est une grande fenêtre au sol;
- salle de bain relativement grande;
- un rendez-vous gratuit, qui peut être utilisé comme dressing, garde-manger, salle de gym, home cinéma, salle de billard, bar, etc.
Surface totale - 139,5 m2. Le projet convient aux propriétaires de grandes banlieues qui ont besoin de construire un garage et une maison d'hôtes sur le territoire. Considérez le projet et ceux dont le budget ou la superficie du terrain est limité, car en fait vous obtenez une maison pleine, seule la surface habitable sera située au deuxième étage.


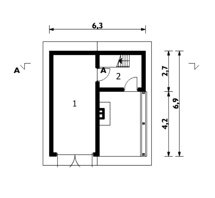
Numéro 3. Projet de garage avec grenier et foyer extérieur
L'auteur de ce projet a décidé de laisser la nomination du grenier à la discrétion des futurs propriétaires, mais il a donné au bâtiment un point culminant qui distingue ce projet de la masse des similaires. Parmi les fonctionnalités de la solution:
- extérieur intérieur coin cheminée, où vous pouvez faire cuire de la viande, du poisson ou des légumes au feu par tous les temps. Si la zone du site le permet, vous pouvez mettre une table à manger pour des collations à l'air frais à proximité;
- le garage est conçu pour une voiture, ce qui rend la construction compacte - sur le site, il sera nécessaire d'allouer un territoire de 6,3 * 6,9 m;
- le grenier peut servir de petite salle à manger en cas de pique-nique par mauvais temps. Là, vous pouvez organiser une zone de loisirs confortable, et les hommes d'affaires peuvent préférer la zone de stockage. Dans le grenier, il sera possible de stocker du matériel de jardinage, des vivres et des vêtements non saisonniers - plus que suffisamment d'espace.
Surface totale - 61,7 m². L'auteur du projet suggère d'utiliser une fondation en bande, murs à construire en béton cellulaire, et le toit est recouvert de métal. Un tel garage s'adaptera à un petite zone, permettant au propriétaire non seulement de garer la voiture, mais aussi de passer un bon moment en compagnie de parents ou d'amis.


Projet n ° 4. Projet de garage avec grenier et terrasse
Ce projet peut être appelé un hybride d'un garage et d'une maison pleine. Les surfaces suivantes sont implantées sur une superficie de 162 m²:
- garage pour deux voitures, dont l'avantage est la présence d'une fenêtre;
- cuisine-séjour avec accès à une terrasse couverte. Tout ce qui vient d'être frit sur le poêle et cuit au four peut apparaître sur la grande table à manger dans la rue en quelques secondes;
- au rez-de-chaussée il y a une salle de bain, de sorte que pendant les pique-niques dans la nature, tous les clients soient à l'aise;
- dans le grenier il y avait une place pour un hall et une grande chambre d'une superficie de plus de 46 m², ainsi que garde-manger.
Bien sûr, le projet convient aux propriétaires de grandes banlieues et nécessite des investissements financiers considérables, mais au final, vous pouvez obtenir un garage et un lieu de vacances de luxe.

Projet n ° 5. Le projet d'un petit garage avec un grenier
Ce projet peut être envisagé classiques pour petites parcelles. Malgré sa taille modeste, il est possible de placer des zones assez utiles dans le bâtiment. Parmi les caractéristiques du projet, nous notons:
- le garage est conçu pour une voiture, ses avantages incluent la présence de plusieurs fenêtres, ainsi qu'une entrée supplémentaire;
- au rez-de-chaussée il y a une petite buanderie qui peut être utilisée comme atelier ou garde-manger. Il y a aussi des fenêtres fournies;
- le grenier spacieux peut être utilisé à votre discrétion.Il convient d'organiser une zone de stockage ou de créer un territoire de divertissement. Les amateurs d'un mode de vie sain apprécieront l'idée de créer une petite salle de sport dans le grenier. Le projet prévoit des puits de lumière, il n'y aura donc aucun problème avec la lumière naturelle.
La surface totale du garage est de 71 m². Excellente solution pour n'importe quel site.

Projet n ° 6. Projet de garage pour deux voitures
Il semblerait que ce projet n’a rien de spécial, vous n’avez ni terrasses, ni cuisines ni saunas, mais c’est la beauté de cette solution. La construction peut être qualifiée de très concise. Si vous terminez comme le suggère le projet, le garage deviendra une véritable décoration du site. En dessous, vous devrez allouer un territoire de 7,3 * 10,4 m. La construction suppose la présence des zones suivantes:
- endroit spacieux pour parking deux voitures. La fonctionnalité peut être considérée comme une grande portemais, si vous le souhaitez, le projet peut être légèrement modifié en prévoyant deux entrées distinctes. Il n'y a pas de porte supplémentaire dans le garage (cela peut être considéré comme un inconvénient), mais il y a trois fenêtres. De plus, vous pouvez entrer dans le garage en passant par le vestibule et la buanderie. Assez d'espace pour un rack haut;
- une petite buanderie au rez-de-chaussée peut être adaptée pour un atelier (les fenêtres vous permettront d'organiser un éclairage naturel efficace) ou un espace de rangement;
- Grand grenier - un terrain pour vos expériences. Quatre fenêtres situées dans le toit permettront d'y aménager à la fois un espace détente cosy et un espace de jeux pour les enfants.
La superficie totale est de 104 m².

Projet n ° 7. Projet de garage avec grenier et deuxième lumière
Ce projet prévoit la construction d'un garage vraiment luxueux. Cependant, pour appeler ce bâtiment simplement un garage, la langue ne tourne pas. En raison de la présence dans le grenier d'un espace de vie à part entière, le garage peut être utilisé comme logement temporaire, maison d'hôtes ou maison de protection.
Caractéristiques du projet:
- garage spacieux pour deux voitures avec trois fenêtres et une entrée séparée;
- un garde-manger au rez-de-chaussée est idéal pour ranger les outils de jardin ou les ustensiles de ménage temporairement inutiles;
- au deuxième étage se trouve studio spacieux, où vous pouvez équiper le salon et la chambre, et si nécessaire - même une petite cuisine;
- également au grenier il y a une place pour un hall d'entrée et une petite salle de bain;
- fonction de projet - balcon mansardéaussi deuxième lumière, grâce à quoi le premier étage et le grenier sembleront plus légers et plus spacieux.
Surface totale - 88 m2, et grâce à la disposition correcte, il a été possible de placer de nombreux espaces utiles sur cette zone.

Projet n ° 8. Garage pour trois voitures avec un grenier
Une autre solution qui peut difficilement être qualifiée de simple garage. En fait, nous avons une maison à part entière, seuls tous les logements sont situés au grenier, et non au premier étage, ce qui est plus typique des maisons ordinaires.
Caractéristiques du projet:
- place de parking trois voitures, et pour qu'il soit pratique pour chaque conducteur d'appeler, il est fourni trois portes;
- il y a un espace dans le garage pour l'équipement de la zone de stockage - tous les outils nécessaires pour réparer la voiture devraient convenir. Merci à la présence de trois fenêtres dans la journée dans le garage sera léger;
- un escalier extérieur mène à l'étage mansardé - une solution inhabituelle, mais assez pratique qui vous permet d'isoler complètement le salon du garage;
- dans le grenier sont placés deux chambres 25 et 28 m², entre eux il y a une salle de bains, un salon avec un coin repas et une kitchenette;
- une des chambres a sortie sur le balcon.
Surface totale - 178 m².

Projet n ° 9. Petit garage avec grenier
Selon le territoire occupé sur le site, il s'agit du garage le plus courant (6,7 * 6,7 m), mais en raison de la présence d'un grenier, la fonctionnalité de ce bâtiment est considérablement élargie:
- au rez-de-chaussée s'adaptera non seulement une voiture, mais aussi une petite buanderie avec une fenêtre. C'est une visite, mais, néanmoins, ici, vous pouvez organiser un système de stockage, une fourniture de bois de chauffage ou d'autres choses nécessaires;
- le grenier est petit, mais il y a déjà 6 fenêtres, ce qui permettra au propriétaire d'économiser considérablement sur les factures d'électricité. Comment utiliser le grenier, décidez par vous-même. Ici, vous pouvez équiper un atelier confortable, une salle de sport ou une salle de billard.
Surface totale - 67,6 m².

Projet n ° 10. Projet de garage pour trois voitures
L'auteur du projet l'a conçu comme un garage avec salon pour le personnel. La solution sera intéressante pour les propriétaires de grandes surfaces qui mettent en avant des exigences accrues sur leur propre confort. Les surfaces suivantes sont implantées sur une surface totale de 145 m²:
- un garage pour trois voitures, mais il n'y a que deux entrées, hélas, car l'une des voitures sera constamment bloquée, ce qui peut être considéré comme un défaut de conception;
- deux petites chambres avec presque un miroir.
Il est proposé de construire un garage sur une fondation monolithique, d'ériger des murs de briques et d'utiliser une tuile métallique pour la toiture.

Projet n ° 11. Projet de garage avec sous-sol et grenier
Vous pouvez utilement utiliser non seulement l'espace au-dessus du garage, mais aussi en dessous. Ce projet prévoit l'implantation des locaux suivants sur une superficie de près de 150 m²:
- garage pour deux voitures;
- une petite terrasse couverte avec un escalier menant au grenier;
- grand garde-manger (superficie 50 m²) situé au rez-de-chaussée;
- le hall au grenier d'une superficie de près de 40 m² peut être utilisé comme salon et chambre, et si nécessaire, aménager une petite kitchenette;
- salle de bain spacieuse d'une superficie de près de 10 m²;
- deux balcons: l'un est situé à l'entrée du grenier et le second est accessible depuis le hall.

Si vous souhaitez construire un garage unique ou s'il existe des exigences particulières, vous devrez créer un projet individuel, mais il est plus facile, plus rapide et moins cher d'utiliser un projet fini, dans lequel vous pouvez effectuer de petits ajustements.











