TOP 10 des projets de maisons d'un étage avec garage

Lorsqu'une décision sans ambiguïté est prise de construire une maison privée ou une maison de campagne, la plupart d'entre nous font le mauvais premier pas - nous commençons tous nos travaux par la recherche d'un artiste responsable. Nous l'avons appelé mal non pas parce que peu importe qui sera impliqué dans la construction et non pas parce que tous les développeurs sont également bons. Mais parce qu'avant de confier une question aussi responsable à quiconque, vous devez comprendre clairement ce que vous voulez exactement construire et quelles attentes et exigences vous placez sur votre future maison. Par conséquent, il serait plus correct de commencer par envisager des projets de masse et de déterminer au moins approximativement la direction pour vous-même. Après tout, de nombreux projets peuvent être appréciés, mais vous ne devez en choisir qu'un, idéal pour vous et votre famille. Il est également important de comprendre pourquoi les bâtiments à un étage sont si demandés et quelles exigences une maison moderne devrait satisfaire. Nous avons sélectionné pour vous certains des projets les plus intéressants.maisons de plain-pied avec garage.

Avantages et inconvénients des maisons à un étage

À un moment donné, les maisons à deux étages ont acquis une immense popularité. Ce n'est pas surprenant, car leurs dimensions seront beaucoup plus compactes que celles à un étage, même avec la même zone. Cependant, avec une bonne réflexion, il n'est pas difficile de conclure qu'un bâtiment à un étage a de nombreux avantages qui dans de nombreux cas seront les critères déterminants lors du choix d'un projet.

  • Commençons par l'étape la plus critique de toute construction - la construction fondation. Pour les bâtiments à plusieurs étages, une fondation renforcée plus profonde est nécessaire. Bien sûr, le coût des travaux de construction et des matériaux eux-mêmes sera beaucoup plus élevé que dans le cas de l'organisation d'une fondation simplifiée, ce qui est tout à fait suffisant pour la plupart maisons à un étage;
  • En raison de la possibilité d'utiliser un type de fondation léger, la plupart des restrictions associées aux caractéristiques du sol du territoire destiné à la construction sont supprimées;
  • Aussi substantiellement sauver possible avec la poursuite de la construction des murs. Du fait qu'ils n'ont pas à supporter le poids du deuxième niveau, il n'est pas nécessaire de les renforcer. Dans le même temps, le choix des matériaux de construction eux-mêmes sera plus large;
  • Le câblage de diverses communications sera plus simple, ce qui signifie qu'elles nécessiteront moins de matériaux. Oui, et les travaux d'installation auront un coût beaucoup plus faible;
  • Le coût d'acquisition des matériaux et des travaux sera également sensiblement inférieur, respectivement, le coût de construction sera plus acceptable;
  • Un de plus fait en faveur du gain économique - le chauffage d'une maison à un étage en hiver est beaucoup moins cher. Et la maison chauffera plus rapidement et plus uniformément;
  • Les structures à un seul niveau peuvent être qualifiées de plus sûres, en particulier pour les familles avec enfants ou les personnes âgées. Pourquoi? La réponse est plus que simple - il n'y a pas de telles maisons escaliersqui peut constituer un danger;
  • Et enfin, d'un point de vue psychologique, ces bâtiments sont perçus intégralement, sans séparation, comme dans le cas des bâtiments à deux étages, ce qui signifie que la famille se positionne sur le subconscient dans son ensemble.Et cela est très important pour une relation saine entre parents.

En ce qui concerne inconvénients:

  • Les coûts élevés pendant le processus de construction seront associés au besoin inévitable d'ériger une grande surface de toit. Mais même après la construction, les coûts ne s'arrêteront pas et seront associés au besoin de réparations planifiées régulières;
  • Les grandes maisons d'un étage nécessitent une superficie suffisante pour le développement. Si cela n'est pas possible, vous devrez respectivement réduire la superficie de la maison, sacrifier la taille des futures pièces;
  • Lors de la conception d'un espace résidentiel d'un étage, il y a une forte probabilité que la plupart des pièces soient traversées. Bien sûr, cela peut être évité et la sélection d'un projet compétent y contribuera.

Concept de maison européenne

Nous aspirons tous à un niveau de vie européen. Et nous avons vraiment quelque chose à emprunter, car leurs technologies sont plus avancées et réfléchies. Vraiment bien planifié et la maison érigée doit répondre à quatre critères de base:

  • Fiabilité Cela signifie que la maison doit être construite à partir de matériaux qui ne nécessiteront pas de soins réguliers et spécifiques, ne rétréciront pas ou ne perdront pas leurs qualités sous l'influence des facteurs environnementaux. Par conséquent, dans les pays européens, il est utilisé béton et brique en céramique ou des blocs de céramique. Ils sont durables et vous n'aurez aucune difficulté si vous avez besoin de revendre un logement. En effet, du fait de la durabilité de tels matériaux, la question de l'illiquidité ne vous concernera pas;
  • Le confort Cet élément implique la présence d'un climat intérieur sain. En conséquence, la maison doit avoir le bon système ventilation, en nettoyant les filtres dans les lieux d'admission d'air qui permettront aux proches de respirer de l'air pur. La température doit être confortable et sa gestion est rapide et facile. Et le plus important - dans votre maison, vous devez être entouré de paix et de tranquillité, et non du bruit des voitures qui passent ou des cris des enfants voisins;
  • Une technologie innovante. Qui devrait être utilisé pour l'isolation thermique non seulement des murs, mais aussi de la fondation et du toit, minimisant les pertes de chaleur dues, par exemple, à la méthode de récupération, au système de ventilation indépendant, etc.;

Coûts d'exploitation réduits. Autrement dit, après la mise en service, la maison devrait exiger des coûts minimes pour son entretien, son entretien et son chauffage. Pour obtenir de tels résultats, il est nécessaire d'utiliser des matériaux de construction et de finition de qualité appropriée et économes en énergie. systèmes de vitrage.

Nous procédons directement à l'examen des projets terminés.

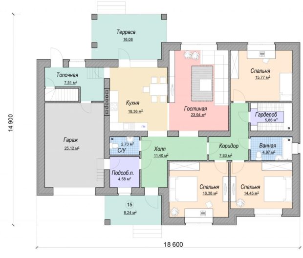
Projet n ° 1 - Hanovre

Un exemple d'un espace bien organisé d'une superficie de 129 mètres carrés. Ceci est un projet fini d'une maison à un étage, qui peut être appelé option idéale pour un séjour confortable d'une petite famille de 2-3 personnes. Ce projet combine parfaitement toutes les qualités nécessaires:

  • Au départ, l'idée de savoir si vous aimez ou non la maison se développe en fonction de son attrait extérieur. Dans ce cas, on peut dire que la façade a des lignes régulières et claires qui sont presque symétriques, non surchargées d'éléments inutiles, et qui sont très sobres et soignées. C'est un gros plus, car il n'attirera pas l'attention sur lui-même, distrayant de la beauté de la maison;
  • Une mise en page pensée dans les moindres détailsqui vous permet d'utiliser rationnellement chaque mètre carré;
  • L'entrée de la maison est porche couvert. Derrière la porte d'entrée, il y a un couloir spacieux et assez large qui vous permettra d'installer une armoire spacieuse;
  • La place centrale est occupée par un salon combiné avec une salle à manger. Un moment agréable est l'endroit désigné pour une cheminée;
  • La salle à manger jouxte une grande terrasse couverte, ce qui permet pendant les mois chauds d'organiser des déjeuners et des dîners en plein air.Grâce à cette proximité, vous n’avez pas à traverser toute la maison pour emporter des plats cuisinés dans la rue;
  • Depuis le salon, il y a des entrées séparées vers deux chambres séparées de taille suffisante. L'un d'eux contient dressing, et dans un autre il y a une place pour un cabinet. Les deux chambres ont de grandes fenêtres qui fournissent le bon niveau d'éclairage;
  • En fonction des préférences personnelles et des besoins des futurs propriétaires, le développeur propose deux options de mise en page, qui ont de légères différences;
  • Dans le premier cas, il n'y aura certainement pas de problèmes de manque d'espace de stockage, étant donné qu'il y a une autre sortie dans le placard depuis le couloir. Pour cette raison, la salle de bain a une surface plus petite et vous permet de n'installer qu'une douche.
  • Idéalement, depuis l'armoire, vous pouvez entrer directement dans le garage, conçu pour une voiture. Vous n'avez donc plus besoin de sortir dehors par temps froid. Il y a une sortie du garage dans ceux-ci. la chambre, et de là - sur le porche de la cour;
  • Dans le deuxième cas, la garde-robe manque. Et il n'y a aucun moyen de sortir du garage directement dans la maison. Mais près de 10 places sont réservées à la salle de bain, qui peut en fait être appelée une chambre. Il comprend une cabine de douche, un bidet, une baignoire ou un petit sauna;
  • Veuillez noter que presque toutes les chambres ont la forme correcte et une surface suffisante;

Projet n ° 2 - «Z131»

Cet exemple de projet radicalement différent de la précédente. Sa superficie est légèrement plus grande - 138 mètres carrés. Et la maison elle-même est conçue pour une famille de 3-4 personnes. La différence réside également dans la possibilité d'arrangement le grenier.

  • La façade de la maison peut être classée en toute sécurité comme modeste, mais moderne et attrayante;
  • L'entrée de la maison est couverte et réalisée sous la forme d'une petite véranda, où vous pouvez placer une petite table et quelques chaises captives;
  • Les portes de garage sont situées sur la même ligne que la porte d'entrée. L'aménagement ne prévoit pas la possibilité d'accéder à la maison depuis le garage;
  • La zone de garage est un peu plus de 20 places, ce qui permet d'aménager une seule voiture;
  • Du garage, vous pouvez entrer dans une petite pièce supplémentaire, qui peut être utilisée comme local technique, et en sortir sur une petite terrasse très confortable;
  • Derrière la porte d'entrée il y a petit couloir forme carrée pratique, qui offre de l'espace pour une grande armoire;
  • Ensuite, nous voyons le couloir en L, à partir duquel vous pouvez entrer dans 7 pièces différentes. Cette forme d'allée a permis de rendre toutes les pièces non isolées, mais isolées. C'est un avantage certain de cette disposition;
  • La maison dispose de trois chambres complètes avec une place pour garde-robe, dont chacun a une grande fenêtre;
  • Entre les deux chambres se trouve la première salle de bain, suffisamment spacieuse pour accueillir tout ce dont vous avez besoin;
  • À droite le long du couloir se trouve la deuxième salle de bains de taille plus modeste avec cabine de douche. Cela crée une commodité supplémentaire lorsque tous les membres de la famille se réunissent quelque part en même temps;
  • En face, il y a une salle qui peut être utilisée comme bureau ou petite bibliothèque. Ou créez votre propre version de l'arrangement. Vous avez peut-être toujours rêvé d'une salle de yoga;
  • Salon, 30 mètres carrés. mètres attire par son espace et sa disponibilité cheminéece qui le rend confortable avec de telles dimensions. Le salon est combiné avec une salle à manger non moins spacieuse, qui offre une petite mais spacieuse garde-manger;
  • Depuis le salon, vous pouvez sortir sur la terrasse spacieuse par de grandes portes coulissantes en verre. Cet élément donne la fonctionnalité et la progressivité de la pièce.

Projet n ° 3 - «Z200»

Ceci est un exemple d'une maison bien planifiée avec garage pour deux voituresoù il y a tout ce dont vous avez besoin. La superficie totale est de 171,7 mètres carrés. mètre. Les chambres dans ce cas sont encore plus spacieuses. Cela est particulièrement vrai pour les chambres.

  • Une pièce destinée à un garage fait saillie par rapport à la partie principale de la maison dans laquelle se trouvent les pièces à vivre. Grâce à cette solution, le chemin vers la porte d'entrée longe la paroi latérale du garage et est couvert;
  • De nombreux clients préfèrent cette option, car de cette façon, un sentiment de confort et une plus grande sécurité sont créés;
  • En entrant dans la maison, vous vous retrouvez dans un petit couloir carré, dans lequel se trouve un placard à droite. Sur la gauche, il y a une porte menant à une petite pièce où vous pouvez installer une autre armoire ou divers racks;
  • De cette pièce, vous pouvez aller directement au garage. Cet arrangement vous permet de transférer facilement des choses de la maison à la voiture ou de déballer les achats;
  • Depuis le garage, il y a accès à une pièce plus grande adjacente au petit dressing. Il est destiné à chaufferie;
  • Il est à noter que ces deux salles du passage n'ont pas entre elles;
  • En traversant à droite le petit couloir, on se retrouve dans le couloir, dans lequel il y a deux salles de bain. Dans l'un d'eux, il n'y a qu'un lavabo et des toilettes. La seconde est terminée. Et ce même couloir, nous pouvons entrer dans trois chambres séparées avec presque la même surface et dans un salon spacieux;
  • Je voudrais porter une attention particulière au salon, car il présente trois avantages à la fois. Un coin cheminée, qui rendra les soirées d'hiver plus confortables, accès à une grande terrasse couverte. Et la chose la plus intéressante est terrain avec une grande surface vitrée, qui est spécialement situé dans la salle à manger;
  • Cette disposition plaira également à ceux qui ne sont pas fans de l'espace combiné. Depuis la cuisine est isolée du salon avec une porte coulissante en verre moderne;
  • L'emplacement de stockage dans la salle à manger, qui est représenté par un garde-manger, d'une superficie de 3,3 mètres carrés, est pensé.

Projet n ° 4 - «Été»

Si votre maison sera située dans un endroit pittoresque, faites attention à ce projet. Il ne laissera pas les amoureux indifférents pour profiter de la beauté de la nature. La superficie de la maison est de 126,5 mètres carrés. mètres et est conçu pour une famille de 2-3 personnes. Cependant, si vous changez l'objectif fonctionnel de l'une des chambres, vous pouvez confortablement accueillir une famille de 3-4 personnes.

  • La structure elle-même a une forme géométrique régulière, ce qui la rend extérieurement très compacte;
  • Pour entrer dans la maison, il faut d'abord monter les petites marches et passer par la véranda de forme trapézoïdale;
  • On se retrouve ensuite dans le vestibule, sur les deux murs desquels se trouvent des lieux de stockage;
  • Le tambour est séparé du hall spacieux par une porte, ce qui vous permet d'empêcher le froid de pénétrer dans la maison;
  • Depuis le hall, 8 portes mènent à différentes pièces isolées les unes des autres;
  • A droite et à gauche l'une de l'autre, deux chambres spacieuses sont prévues;
  • L'un d'eux a une porte menant à une grande salle de bain. Que ce soit pratique ou non est une question plutôt controversée;
  • Une salle de bain supplémentaire est accessible directement depuis le couloir, et de celui-ci à une petite buanderie;
  • Il y avait une place pour une petite armoire;
  • La cuisine-salon est un espace holistique et occupe une assez grande surface;
  • La caractéristique principale de cette maison est une grande terrasse couverte d'angle, adjacente à cette pièce;
  • Il y a aussi une entrée sur la terrasse du côté de la rue. Autrement dit, vous pouvez entrer dans la maison par l'arrière-cour;
  • La superficie de la salle réservée au bureau est de près de 22 mètres carrés. mètre. Si vous le souhaitez, il peut être converti en une autre chambre;
  • Depuis le hall, vous pouvez également accéder à la grande cuisine d'été par un petit couloir. De la cuisine il y a un accès à la rue;
  • De la cuisine d'été, vous pouvez également vous rendre au garage, conçu pour une voiture.

Projet n ° 5 - «Falcon Mountain»

Ce projet est un exemple de placement réussi de trois chambres, d'un salon spacieux avec une baie vitrée et d'un spacieux garage pour 2 voitures. La superficie de la maison est de 151 mètres carrés. mètre

  • Le garage est une extension de 41 mètres carrés. mètre avec deux fenêtres et sans passage vers la partie principale de la maison;
  • Mais depuis le garage, il y a un accès à la cour arrière, à côté de laquelle il y a un porche avec une autre porte d'entrée menant directement à la cuisine-salle à manger;
  • Autrement dit, pour entrer dans la maison, il n'est pas nécessaire de la contourner en cercle;
  • L'entrée principale est également située sur un petit porche et est située du même côté que l'entrée du garage;
  • En entrant dans la maison, on se retrouve dans un petit vestibule, clôturé du couloir par une porte. En termes d'efficacité énergétique, c'est une très bonne solution;
  • Le hall d'entrée est en forme de L avec une petite branche. De là, vous pouvez entrer dans le salon spacieux avec une baie vitrée;
  • Dans la cuisine-salle à manger séparée du salon;
  • À la salle de bain, qui est également séparée, ce qui est plus pratique pour beaucoup que la version combinée;
  • Une telle disposition réussie et compacte a permis d'allouer de l'espace pour trois chambres à coucher séparées de surface différente mais suffisante;
  • Petite fonctionnalité ce projet est la disponibilité fenêtres dans la salle de bain. Quelqu'un, au contraire, considérera cela comme un inconvénient, mais s'il est correctement conçu, cet élément peut devenir un point fort clé. De plus, la fenêtre de la salle de bain dans l'appartement et la fenêtre de la salle de bain dans votre maison sont deux grandes différences.

Projet n ° 6 - «Confort»

Ceci est un exemple de l'agencement d'une grande maison de 180 mètres carrés. mètres. Sa caractéristique est grande disponibilité intérieureterrassesun garage équipé d'un sous-sol et vitrage panoramique dans le salon spacieux.

  • Parlez un peu plus du garage. En dessous se trouve un petit sous-sol. De plus, la bonne décision a été d'équiper la fournaise du garage. En raison du retrait de cette pièce de l'agencement général, les autres pièces pourraient être rendues plus spacieuses;
  • Du four, vous pouvez aller directement à la maison;
  • L'entrée principale est située sur le porche couvert. Si vous le souhaitez, vous pouvez attribuer une place pour un banc ou une petite table avec des chaises;
  • À côté de la porte d'entrée, une autre mène à la buanderie, d'où vous pouvez entrer dans le garage ou sortir dans le couloir. Ainsi, le transfert de choses vers la voiture sera très pratique;
  • Une salle de bain d'hôtes jouxte la buanderie, dans laquelle il n'y a qu'un lavabo et des toilettes;
  • La salle passe en douceur dans le couloir. Ces deux zones sont deux lettres connectées "G";
  • La cuisine et le salon sont reliés entre eux par une porte coulissante en verre, de sorte qu'ils peuvent en même temps être appelés pièces séparées;
  • Un point attractif de ce projet est la présence d'une grande terrasse, qui jouxte la cuisine. Le passage entre eux est un grand vitrage avec une porte. Les fans de réunions fréquentes avec des amis aimeront cette solution;
  • Le salon dispose également d'un grand vitrage sur le mur d'extrémité. Les fenêtres de ces pièces donnent sur la cour arrière, où se trouvent souvent les plus beaux éléments. aménagement paysager;
  • Le reste de la maison est occupé par trois chambres spacieuses, accessibles par le couloir;
  • La salle de bain principale combinée et la penderie attenante de taille suffisante.

Projet n ° 7 - «Z311»

Un exemple d'une maison chic et spacieuse pour un placement confortable grande famille de 5 personnes et un garage spacieux conçu pour deux voitures. La superficie totale du bâtiment est de 201 mètres carrés. mètre

  • Le garage est légèrement poussé vers l'avant par rapport à la façade. Grâce à cela, l'entrée de la maison est une petite terrasse couverte;
  • Depuis le garage, il est possible d'accéder à un local technique assez spacieux, ainsi qu'à un petit dressing;
  • De là, vous pouvez aller directement au hall d'entrée, où se trouve une grande armoire. Cette petite pièce est séparée de la zone où il y a des passages dans les salons par une porte;
  • Un long couloir mène à trois chambres séparées, adjacentes. Dans chacun d'eux, il y a une place pour installer une grande armoire spacieuse;
  • La quatrième chambre est la plus grande, il y a une place pour une armoire;
  • Des trois chambres, il est possible de sortir sur une longue terrasse qui entoure près de la moitié de la maison;
  • De plus, l'accès à la terrasse se fait depuis un immense salon d'une superficie de 40 m². mètres, qui est combiné avec la salle à manger;
  • La cuisine a fourni un petit coin pour installer des étagères ou des armoires, résolvant ainsi le problème du manque d'espace de stockage;
  • Nous ne pouvons pas ignorer le fait que la disposition vous permet de placer jusqu'à quatre salles de bain dans la maison. La plus grande vous permet d'installer une salle de bain complète, les deux autres petites pièces sont conçues pour une douche, et dans la quatrième il y a un lavabo et une machine à laver;

Projet n ° 8 - «Maison en L»

Ceci est un exemple de projet qui est génial adapté aux fonctionnalités du site en cours de développement. Après tout, il n'est pas toujours possible d'obtenir un site de la bonne forme sous la forme d'un carré ou d'un rectangle. Ou, en plus de la maison elle-même, il faut équiper un petit aire de jeux devant le porche ou un beau jardin fleuri. Ensuite, une telle solution vous aidera à vous libérer de l'espace libre, mais en même temps à ne pas perdre en confort. La zone de construction est de 210 mètres carrés. mètres. Dans le même temps, la maison est conçue pour une famille de 2-3 personnes.

  • La disposition de la maison est assez simple, ce qui dans ce cas n'est qu'un avantage, et toutes les pièces, y compris les bureaux, sont très spacieuses;
  • En entrant dans la maison, vous vous retrouvez dans un vestibule avec de beaux vitrages assez grands pour y placer un petit canapé, un cintre et y retirer confortablement les chaussures et les vêtements d'extérieur. Appréciez particulièrement cette décision d'une famille avec un petit enfant;
  • Le tambour est clôturé du hall spacieux par une porte, ce qui empêchera le froid de pénétrer dans l'espace de vie lors de l'ouverture de la porte d'entrée;
  • Depuis le hall, 5 portes mènent à deux chambres, une superficie de plus de 20 mètres carrés. mètres, dans une grande salle de bain avec fenêtre, une superficie de près de 14,5 mètres carrés. mètres, une chaufferie non moins spacieuse, qui a une fenêtre et accès à un beau porche semi-circulaire, et un coin cuisine de 16 mètres carrés. mètres avec deux grandes fenêtres;
  • Grand avantage est que toutes les pièces sont isolées les unes des autres, à l'exception d'un grand salon avec une baie vitrée, qui n'a pas de cloison de porte et qui est une continuation spectaculaire du hall;
  • Un autre avantage de ce projet est un garage spacieux pour deux voitures, dont la superficie est de près de 50 mètres carrés. mètres. Si nécessaire, il est possible d'y aménager des lieux de stockage pour diverses choses générales. Par exemple, un vélo pour enfants, une cuillère gonflable, des meubles pliants pour une aire de jeux d'été, etc.;
  • Le garage n'a aucune communication avec la maison, mais il y a une porte qui vous permet de sortir dans la cour arrière;

Projet n ° 9 - «Maison avec garage sous un même toit»

Dans la plupart des cas, le garage se démarque clairement par rapport à la partie résidentielle de la maison, car il s'agit en fait d'une extension. Tout le monde n'aime pas un contraste aussi clair, nous vous proposons donc un projet de maison dans lequel le garage est son suite organique et être sous le même toit que la partie résidentielle. La superficie de la maison est de 200 carrés.

  • Initialement, la disposition comprend deux chambres, mais il y a possibilité de convertir étude spacieuse avec une superficie de 20 mètres carrés. mètres sous un autre salon. Ce sera l'occasion pour un séjour confortable d'une famille de 3-4 personnes;
  • Malgré l'apparence plutôt modeste du bâtiment lui-même, il contient tout ce dont vous avez besoin;
  • Tambour, alias garde-robe, a une superficie de 10 mètres carrés. mètres. Un accès au grenier est également équipé depuis le vestibule, où vous pouvez ranger des objets rarement utilisés;
  • Il y a une autre armoire suffisamment spacieuse avec une porte pliante pratique en plus des armoires fournies dans toutes les chambres;
  • La cuisine-salle à manger spacieuse, combinée avec le salon, a la possibilité de sortir sur la terrasse couverte trapézoïdale avec vitrage;
  • De plus, de petites marches dans la cour mènent à la terrasse;
  • Une des chambres a une porte vers une salle de bain spacieuse;
  • La deuxième salle de bain avec douche a une porte dans le couloir;
  • Fonctionnalité de cela le projet il y a un sauna, qui jouxte une salle de bain plus petite;
  • Le garage a une superficie de près de 30 places et est conçu pour une voiture;
  • Depuis le garage, vous pouvez entrer dans la cuisine d'été spacieuse, qui a tout ce dont vous avez besoin. Et de là, en descendant les petites marches, vous pouvez aller directement dans la cour arrière;
  • On ne peut que faire attention à la belle entrée de la maison, qui est faite sous la forme d'un petit porche, et aux gracieuses fenêtres cintrées sur les façades, qui donnent à la maison un charme particulier;

Projet n ° 10 - «Maison à toit plat»

Ce projet plaira à ceux qui préfèrent le moderne directions de l'architecture, la forme claire et pratique correcte. Alors qu'en Russie, la construction de maisons à toit plat n'est pas très courante, mais ce n'est qu'une question de temps.

  • Je voudrais immédiatement noter le plus évident - type de construction d'origine. De plus, un toit plat vous permet d'économiser sur les matériaux de construction et la nécessité de construire un système de chevrons complexe, comme ce serait le cas avec un toit en pente conventionnel;
  • En plus d’économiser, vous avez opportunité unique organiser une grande terrasse d'été sur le toit, prendre des bains de soleil, faire des fêtes en plein air ou tout simplement admirer les étoiles; vous devez en convenir; il y a quelque chose de spécial et d'attrayant à ce sujet;
  • La superficie de la maison est de 136,5 mètres carrés. mètres hors zone d'une immense terrasse couverte, ce qui est une belle continuation façadeet la zone du garage. Une partie de la verrière au-dessus de la terrasse est translucide, ce qui permet de placer des chaises longues en dessous et de profiter de la lumière solaire dispersée;
  • Le reste du toit au-dessus de la terrasse, qui à ce point jouxte le grand salon combiné avec la salle à manger, est rendu entier. Juste en dessous se trouve une grande porte coulissante en verre, à travers laquelle vous pouvez entrer directement dans le salon;
  • La porte d'entrée est située sur le côté opposé de la façade. Immédiatement derrière, il y a un petit vestibule d'où vous pouvez entrer dans le couloir reliant toutes les autres pièces;
  • À gauche du vestibule se trouve la première salle de bain pour les invités, derrière elle se trouve une petite pièce dans laquelle vous pouvez organiser un garde-manger ou une armoire;
  • Toujours dans le couloir, il y a deux niches pour installer une grande armoire et une commode ou une étagère;
  • L'aménagement prévoyait la présence de deux salles de bain supplémentaires devant la couronne des chambres, ce qui est très pratique si la famille est nombreuse. Dans l'un d'eux il n'y a qu'une cabine de douche, dans l'autre il y a aussi une baignoire;
  • Près de la salle de bain, il y a une autre armoire;
  • Caractéristique de la maison il y a des portes en verre à charnières dans chacune des chambres à travers lesquelles vous pouvez accéder à la terrasse;
  • Un garage spacieux vous permet de ranger deux voitures.

Comme vous pouvez le voir, les maisons à un étage peuvent être aussi fonctionnelles et belles que les bâtiments à plusieurs étages. Mais en même temps, ils nécessitent beaucoup moins d'investissement dans la construction.

2 commentaires

Ajoutez un commentaire

Votre adresse e-mail ne sera pas publiée. Les champs obligatoires sont marqués *

Au début

La cuisine

Chambre à coucher

Couloir