Construction de maisons avec la deuxième lumière: 10 projets intéressants
Que se passera-t-il si les fenêtres panoramiques du mur font encore plus? Chalets dans lesquels il n'y a aucune partie du chevauchement entre les étages, et fenêtre panoramique le salon a une hauteur de 6-8 mètres, appelé résidences secondaires. C'est une technique assez originale et pourtant peu courante, qui permet d'ajouter plus de lumière, de liberté et de monumentalité à la maison. De plus, grâce à la deuxième lumière, vous pouvez créer un conception et profitez du paysage pittoresque à la maison. Solution similaire aujourd'hui Il est utilisé principalement à l'arrangement maisons de campagne.
L'idée des maisons en verre n'est pas nouvelle; elle s'est incarnée au XXe siècle sous la forme de bureaux et d'édifices publics modernistes. Conception de bâtiments résidentiels et gîtes avec vue panoramique les fenêtres dévoilée récemment, c'est une mode du XXIe siècle. Les raisons qui ont entravé la construction de maisons aux murs transparents au cours des périodes précédentes ne sont pas techniques, mais psychologiques. Une maison avec un mur entièrement vitré semblait non protégée, fragile, et donc il n'y avait pas de demande pour une telle construction. La situation a changé lorsque des villages de chalets avec une zone protégée et de grandes parcelles ont commencé à être construits.
Les maisons avec une deuxième lumière ont un salon, agrandi vers le haut en raison du manque d'une partie du chevauchement entre les étages. La hauteur d'une telle pièce dépasse six mètres, et une fenêtre panoramique donnant sur le jardin est disposée à toute la hauteur du mur. Une belle vue depuis la fenêtre est une condition préalablesinon, il n'est pas nécessaire d'organiser une vue aussi large. Dans le même temps, les propriétaires sont sûrs que la fenêtre panoramique ne viole pas la confidentialité et la sécurité, car le territoire est protégé, et personne de l'extérieur ne dérangera le repos et la paix. De plus, dans les maisons avec une deuxième lumière, il y a des pièces ordinaires complètement fermées aux regards indiscrets.
Aspects techniques du deuxième monde
La superficie totale du chalet, permettant d'allouer de l'espace sous le salon avec une deuxième lumière, devrait dépasser 120 m2. Dans la maison, sauf spacieux et haut salondes chambres régulières sont aménagées. Les chalets d'une superficie plus petite peuvent être équipés de fenêtres panoramiques, mais ils n'essaient pas d'unifier les étages, car vous devrez abandonner deux ou trois pièces ordinaires où vous pourrez vous équiper chambres à coucher ou enfants.
Depuis le salon, organisez l'accès aux locaux du premier et du deuxième étage. Pour monter au deuxième étage, une décoration escaliervis ou marche. Une autre caractéristique des maisons avec une deuxième lumière est la nécessité réfléchissez bien système de chauffage, car une pièce d'une hauteur supérieure à 5 mètres nécessite une approche particulière, et radiateurs conventionnels ne suffira pas.
Les avantages et les inconvénients des maisons avec un deuxième éclairage
Si vous comparez tous les avantages et inconvénients de ces maisons, la première est beaucoup plus grande, vous pouvez donc commencer par elles. Alors les principaux avantages des maisons avec un deuxième éclairage peuvent être appelés:
- possibilité de créer design uniqueet tout en étant assis dans le salon, vous pourrez profiter d'une vue panoramique sur le magnifique paysage;
- possibilité de créer unique système d'éclairageparce que dans une pièce avec de hauts plafonds, vous pouvez utiliser un chic grand lustre ou beaucoup de projecteurs, ou d'autres solutions intéressantes avec lesquelles la maison devient vraiment unique;
- si vous aimez faire pousser des plantes, alors les maisons avec une deuxième lumière vous permettront de créer une vaste collection, même d'équiper jardin d'hiver, et la quantité de lumière sera maximale, et vous pouvez vous permettre même les plantes les plus hautes;
- énorme fenêtres sera considérablement économiser sur l'éclairage et profitez au maximum de la lumière naturelle;
- la fragilité et l'insécurité des maisons avec un deuxième éclairage sont depuis longtemps réfutées. Pour l'organisation de l'utilisation du vitrage de solides fenêtres à double vitragequi fonctionnent selon le principe de la serre: les rayons du soleil traversent librement le verre, chauffent tous les objets de la maison, se transforment en rayons infrarouges qui ne peuvent plus passer à travers le verre.
Mais aussi faiblesses dans les maisons avec une deuxième lumière ont également:
- perte d'espace utilisable, car l'absence d'une partie des plafonds nous oblige à abandonner quelques pièces pas toujours supplémentaires: chambres ou buanderie. C'est pourquoi la "deuxième lumière" n'est organisée que dans les maisons de superficie suffisante pour que ce bonus ne provoque pas d'inconfort;
- hauteur sous plafond dans le séjour Est-ce difficultés supplémentairesdepuis laver les fenêtres ou changer des ampoules dans un lustre sans l'aide d'un tiers professionnel sera pratiquement impossible, et cela représente un coût supplémentaire;
- des difficultés surviennent lorsque organisation du système de chauffage, parce que les radiateurs ordinaires, même s'ils sont en nombre suffisant, seront peu nombreux - les lois de la physique fonctionnent. C'est pourquoi il vaut mieux attirer des spécialistes pour développer un système d'alimentation en chaleur. Besoin habituellement disposition d'un plancher chaud ou rideau thermique, lorsqu'un flux d'air chauffé se déplace le long du verre de haut en bas. Ne fait pas non plus mal isolation thermique fiable les murs et les toits, et en tant que radiateurs, il est préférable d'utiliser ceux qui chauffent des objets dans la pièce, plutôt que de l'air.
10 projets intéressants de maisons avec une deuxième lumière
Si certains des inconvénients de ces maisons ne vous dérangent pas, vous pouvez procéder à la conception et à la construction d'une telle structure sur votre site. Bien sûr, vous pouvez créer votre propre projet unique, en tenant compte de toutes les exigences individuelles, mais vous pouvez en acheter un prêt à l'emploi: il est plusieurs fois moins cher, et tous ces projets sont pensés dans les moindres détails afin que la maison construite soit confortable et confortable. Considérez les plus intéressants d'entre eux.
N ° 1. Grace
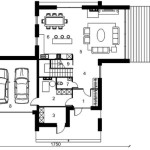
Il s'agit d'un projet d'une luxueuse maison de deux étages avec une superficie de 319 m2. Idéal pour une grande famille, qui peut non seulement se détendre ici plusieurs semaines par an, mais aussi vivre pleinement - toutes les chambres nécessaires sont fournies. La partie principale du premier étage est une cuisine-salon spacieuse, qui offre une vue panoramique. Sur la place, vous pouvez placer confortablement la cuisine et la salle à manger, ainsi qu'une zone de loisirs. De plus, au rez-de-chaussée il y a une salle de bain et beaucoup de buanderies pour ranger les choses, les outils de jardin et autres. Il y a un garage pour deux voitures et une terrasse où vous pourrez pique-niquer ou simplement bronzer.
Au deuxième étage, le projet comprend trois chambres, dont une dressing et propre salle de bain, ainsi qu'une autre la salle de bain. Autant de salles de repos suffiront pour une grande famille, et la maison construite selon ce projet sera confortable et propice à la détente.
N ° 2. Nord
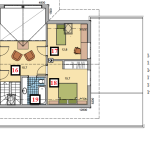
La maison construite sur ce projet, contrairement à la précédente, convient pour une petite famille, qui ne passera pas beaucoup de temps ici, car il est compact et dispose d'un minimum de chambres. La particularité de la maison est une terrasse spacieuse, qui peut devenir un excellent endroit pour la détente et les vacances en famille. La superficie totale de cette maison à deux étages est de seulement 76 m2Par conséquent, le projet ne convient qu'à un groupe distinct de personnes.
Au rez-de-chaussée, comme d'habitude, il y a une cuisine spacieuse avec un salon, ainsi qu'une salle de bain. Dans cette partie de la maison où il n'y a pas de vitrage panoramique, une chambre d'enfants et une petite chambre sont aménagées.Au deuxième étage, selon le projet, vous pouvez placer une chambre et un dressing plus spacieux.
Numéro 3. Optimum
Une telle maison peut devenir un lieu de détente complet et varié, et il y a suffisamment d'espace pour une grande famille ou pour un grand groupe d'amis. Le projet de cette maison de deux étages bénéficie d'une superficie de plus de 530 m2. Depuis le premier étage, il y a un accès à une immense terrasse, qui peut être utilisée de différentes manières. Aussi au rez-de-chaussée il y a couloirmenant à un salon spacieux dont la décoration est le "second monde". La cuisine est séparée du salon, dispose également d'un grand espace et d'un coin repas séparé. Depuis la cuisine et le salon, il y a un accès à la terrasse, donc les beaux jours, vous pouvez facilement organiser un déjeuner à l'air frais - tous les produits peuvent être facilement et simplement retirés.
Au rez-de-chaussée, il y a également quelques salles de bains, une immense salle de sport, un sauna avec piscine, une chaufferie, un cellier, des buanderies et le garage pour deux voitures. Un escalier depuis le salon mène au deuxième étage vers le hall, qui offre également une vue imprenable depuis la fenêtre. Au deuxième étage, il y a une chambre avec une salle de bains et un dressing séparés, ainsi que trois autres chambres et deux bains supplémentaires. Un projet similaire convient à quelqu'un qui souhaite se détendre dans sa maison de campagne avec un maximum de confort.
Numéro 4. Grèce
Ceci est un projet d'une autre maison spacieuse de deux étages avec une superficie de 302 m2. Les solutions externes et internes sont pensées dans les moindres détails. Ainsi, au rez-de-chaussée il y a un salon avec vue sur la terrasse et les paysages environnants. La cuisine et la salle à manger sont à proximité, mais en même temps, elles sont séparées par une courte cloison. De la salle à manger, il y a un accès à la terrasse, donc si vous le souhaitez, tout ce qui est cuisiné peut être facilement sorti pour organiser un déjeuner ou un dîner au grand air. Au rez-de-chaussée, il est également prévu d'aménager une salle de bain, cellier, chaufferie, penderie, ainsi qu'une chambre, depuis laquelle on accède également à la terrasse.
Depuis le salon, un escalier monte vers le hall du deuxième étage, d'où les portes mènent à trois chambres, une salle de bain et un dressing, et une autre salle de bain est prévue dans l'une des chambres. Le résultat est un bon projet de maison de campagne pour une grande famille.
N ° 5. Maison finlandaise
Un projet assez intéressant, selon lequel vous pouvez construire une maison confortable de deux étages avec une superficie de 286 m2. En raison des caractéristiques de la mise en page, cette zone s'adaptera à des objets encore plus utiles que dans la version précédente. La base du premier étage est un salon avec une deuxième lumière. A côté du salon se trouve la salle à manger avec accès à la terrasse, il y a aussi une cuisine. En plus de ces pièces, ainsi que du couloir et du couloir, au rez-de-chaussée il y a une salle de bain, une chambre avec dressing et une salle de bain, mais ce n'est pas tout. Une caractéristique du projet est la disponibilité d'espace pour un sauna avec douche et un dressing.
Comme dans tous les autres projets de maisons avec une deuxième lumière, ici un escalier au deuxième étage mène du salon et mène au hall au deuxième étage. Il est également utilisé comme espace de loisirs, car la vue s'ouvre de la même manière que depuis le salon. Il y a également trois chambres, dont une avec une armoire et un balcon, une salle de bain pour tous.
N ° 6. Flèche
Le projet de cette maison est vraiment unique et intéressant, il convient à ceux qui veulent réaliser une solution originale, mais en même temps ne prive pas la maison de confort et de confort. La superficie est de 370 m2, deux étages, et la particularité est la présence d'une galerie au deuxième étage, ainsi qu'une masse d'objets pour le repos et la détente. La maison a une forme particulière, et au rez-de-chaussée il y a un salon et une cuisine-salle à manger, et ils sont situés de manière à être une seule pièce, et deux murs parallèles sont entièrement vitrés. De plus, au rez-de-chaussée, il y a un vestibule avec un hall d'entrée, une salle de bain, ainsi qu'un hall avec accès à la salle de bain, une buanderie et une salle de sport, à proximité il y a un passage vers la piscine, d'où vous pouvez sortir sur la terrasse spacieuse. Il est impossible de trouver une meilleure solution pour des vacances reposantes.Pour plus de commodité, au rez-de-chaussée il y a un espace pour un garage pour deux voitures.
La «deuxième lumière» étant en fait située des deux côtés, le deuxième étage est prévu à l'aide d'une galerie qui mène des escaliers aux deux chambres d'enfants. Au deuxième étage se trouvent également deux chambres et une salle de bains.
Numéro 7. Des amis
Le nom du projet de cette maison parle de lui-même. Les chambres sont situées et équipées de manière à ce qu'il y ait suffisamment d'espace pour une grande entreprise et pour que le repos de chacun soit aussi confortable que possible. Il convient de noter tout de suite que le projet de la maison ne prévoit pas de garage, mais le problème du stationnement peut être résolu de nombreuses autres façons. Mais sur une superficie de 450 m2 Toutes les pièces nécessaires sont situées.
Au rez-de-chaussée il y a un immense salon avec une deuxième lumière, il se connecte à la salle à manger, qui offre également une belle vue. La cuisine et la salle à manger sont combinées, et à partir de ce dernier, il y a un accès à la terrasse pour dîner en plein air. Toujours au rez-de-chaussée il y a une chambre d'hôtes avec accès à la terrasse et sa salle de bain, dressing, salle de gym avec baignoire. Le deuxième étage a un salon spacieux, un dressing et quatre chambres, chacune ayant une salle de bain séparée - idéale pour un grand groupe d'amis.
Numéro 8. Juneau
Cette maison sera assez spacieuse mais pas immense et parfaite pour une famille moyenne ou grande. La superficie est de 215 m2et au rez-de-chaussée, avec le hall d'entrée et le hall, il y a un salon avec armoire, depuis le salon il y a un accès à la terrasse. Il y a aussi une cuisine avec un coin repas et un bain avec un dressing et des salles de bains.
Au deuxième étage, il y a un escalier attenant au hall, dont les portes s'ouvrent sur quatre chambres, dont trois ont leur propre dressing. Il n'y a qu'une seule salle de bain au deuxième étage.
N ° 9. String
Un autre projet d'une maison agréable et confortable, qui convient pour accueillir une grande famille et sa détente confortable et même l'hébergement. La superficie de la maison est de 251 m2, et au rez-de-chaussée il y a un couloir, qui passe en douceur dans le salon et la cuisine-salle à manger. Depuis le salon, il y a un accès à la terrasse et la distance entre la cuisine et la terrasse est minime, il sera donc facile de servir une table à l'air frais.
Au rez-de-chaussée il y a une armoire et une chambre d'amis, ainsi qu'une salle de bain, WC et chaufferie. Le deuxième étage de la maison comprend le placement de trois chambres avec balcon, il y a un cellier et une salle de bain séparée.
N ° 10. Lucco
Le projet de la maison, conçu pour une superficie de 280 m2. Au rez-de-chaussée il y a un hall d'entrée assez spacieux avec un couloir qui mène au salon-salle à manger et à la cuisine. De la cuisine il y a accès à la véranda et une terrasse. Il abrite également une chaufferie, une chambre et une salle de bain, et la particularité de l'aménagement est qu'il y a accès à une autre terrasse depuis le salon.
Les escaliers du salon s'élèvent vers un long couloir au deuxième étage, où se trouvent les portes de quatre chambres, dont deux sont équipées de balcons. Au deuxième étage, il y a également un cellier et deux salles de bains.
En conclusion
Les maisons de campagne avec un deuxième éclairage deviennent de plus en plus populaires aujourd'hui, mais leur prévalence n'est toujours pas si élevée. C'est pourquoi si vous prévoyez de construire votre propre maison et choisissez un projet, faites attention à une telle solution, car elle est unique et présente de nombreux avantages.













































