TOP 11 projets intéressants de maisons en bois
Posséder une maison en bois est un rêve pour beaucoup d'entre nous. Dans un tel bâtiment respire même d'une manière spéciale! Le respect de l'environnement est le principal, mais loin du seul avantage des maisons en bois. Probablement, ce n'est pas en vain que nos ancêtres ont préféré ce matériau de construction. Pour profiter de tous les avantages d'une maison en bois, il n'est pas nécessaire aujourd'hui d'utiliser un matériau aussi cher qu'une bûche. À partir d'un bar, vous pouvez construire une maison non moins durable, et la construction coûtera beaucoup moins cher et prendra un minimum de temps. La poutre gagne également d'un point de vue architectural, car il est possible d'en construire des structures assez complexes et complexes. Il convient également pour la construction de bâtiments simples. Pour vous convaincre de la polyvalence de ce matériau de construction, nous avons sélectionné plusieurs projets intéressants de maisons en bois.
À partir de poutres ordinaires et profilées, pleines et collées Aujourd'hui, ils construisent à la fois des chalets de banlieue et des résidences d'été, ainsi que des résidences permanentes. Obtenez du matériel à partir de bois de conifères en coupant des bûches entières. Poutre collée réalisé par collage longitudinal de panneaux individuels. Le résultat est un produit qui, par sa résistance, sa résistance à la pourriture et à la fissuration, contourne un analogue monobloc.
Le bois étant un matériau naturel, les maisons construites à partir de celui-ci approchent de respect de l'environnement. De plus, les coûts de construction à peu de fraispar rapport à un journal, brique, bloc de gaz et de nombreux autres matériaux de construction. Puissant la fondation pas nécessaire, et cela gain de temps et d'argentet la construction des murs ne prendra que 1 à 3 semaines. Seulement construit plus rapidement maisons à ossaturequi perdent aux maisons du bois sur le respect de l'environnement. Vous pouvez économiser sur externe et décoration intérieureparce que l'arbre est beau en soi. Cependant, les murs à l'intérieur de la maison sont généralement bordés d'un blockhaus ou doublure. Tous les inconvénients sont liés non pas à la technologie, mais aux caractéristiques du matériau: l'arbre a peur du feu, des parasites et de l'humidité, il devra donc être traité en conséquence. Efficace et peu malsain imprégnation ne sont pas bon marché.
Il s'avère que si nécessaire construire une maison en bois et ne pas faire faillite, alors le faisceau est la meilleure option. Il ne reste plus qu'à choisir un projet adapté.
N ° 1. Le projet Neat
Pas une maison, mais une vraie tour! Le nom du projet justifie pleinement toutes les caractéristiques du bâtiment. Extérieurement, la maison semble assez soignée, mais grâce à une disposition compétente en elle sur une superficie de 106 m2 est placé 5 chambres et d'autres pièces utiles. Le salon combiné avec la cuisine est situé au rez-de-chaussée: en raison de la présence de trois fenêtres, il y sera longtemps éclairé. A proximité se trouve une pépinière, dont la superficie a été augmentée en raison de la disponibilité baie vitrée. Dans le voisinage immédiat est également une salle de bain combinée assez spacieuse et un autre salon. Il peut être utilisé non seulement comme chambre à coucher, mais aussi comme bureau ou petit gymnase.
Le deuxième étage est réservé à trois chambres, toutes assez spacieuses, dont une avec une baie vitrée. La grande salle, qui relie les trois pièces, peut être aménagée en espace de loisirs commun avec plusieurs fauteuils et une table. Fait saillant du projet - Ce n'est pas seulement une baie vitrée, mais aussi des balustres sculptés qui soutiennent la balustrade sur le porche couvert. Une telle maison sera une excellente destination de vacances pour une grande famille et une fierté pour ses propriétaires. L'entreprise de construction Brusina peut fournir tous les détails sur ce projet et construire cette maison soignée et assez spacieuse. Elle est engagée dans la construction de maisons en bois sur des projets standards et individuels. De la conclusion du contrat à la construction de la maison, quelques jours passent, les maisons en bois en bois de Brusina sont construites par des spécialistes expérimentés qui respectent les délais convenus et tiennent compte de tous vos souhaits.
N ° 2. Projet familial
Si vous prévoyez de construire immense maison, alors ce projet doit être considéré. Deux étages et 190 m2 zones vous permettent de placer librement à l'intérieur de la maison toutes les pièces résidentielles et utilitaires nécessaires. Le projet offre un espace de vie chic avec table à manger dans baie vitrée avec vitrage quasi panoramique. Imaginez à quel point il est merveilleux de déjeuner ici et de profiter de la vue depuis la fenêtre. Par beau temps, vous pouvez déplacer le repas à terrasse couverte: à 10 m2 une table et des chaises seront confortables. Vous pouvez facilement accéder à la terrasse depuis la cuisine - vous n'aurez même pas le temps de refroidir quoi que ce soit. Au rez-de-chaussée, le projet prévoit une chambre et une salle de bain combinée, attenante au local technique (adapté à l'organisation d'une chaufferie). Il y a suffisamment d'espace dans le vestibule garde-robe.
Le deuxième étage est composé de deux chambres très spacieuses. L'un d'eux a un immense vitrage, et le second - l'accès au balcon, qui a également accès depuis le bureau. Cette dernière peut cependant être transformée en crèche ou autre chambre. Au grenier il y a une salle de bain privée et une petite buanderie. Il peut être utilisé sous garde-manger ou faire une suite de la salle de bain. Une telle maison convient à la résidence permanente et aux sorties périodiques d'une grande famille dans la nature.

Numéro 3. Projet "Pays"
Petite maison à partir d'une poutre, vous pouvez construire très rapidement et vous en sortir avec un investissement minimal. Voilà pourquoi pour la construction de compact maisons de campagne utiliser cette technologie particulière. Le projet prévoit la construction d'une maison compacte dans laquelle il y a tout le nécessaire pour un résident d'été. Ici même une petite entreprise pourra accueillir. La moitié du rez-de-chaussée est occupée par une cuisine-salon combinée, où il est facile d'organiser tout ce dont vous avez besoin pour vous détendre et cuisiner de délicieux repas d'été à partir de votre propre récolte. Depuis le salon, vous pouvez entrer dans la chambre. Au rez-de-chaussée, il y a également une salle de bain et un hall d'entrée, où il y a suffisamment d'espace pour l'installation d'une armoire.
Sur étage mansardé sous les arches du toit, vous pouvez organiser une autre chambre: il y a beaucoup de place pour un mouvement confortable et la détente. La superficie totale de la maison n'est que de 63 m2mais en raison d'une disposition bien planifiée, une famille avec deux enfants peut facilement y séjourner.

Numéro 4. Projet "Liulf"
Selon ce projet, vous pouvez construire une maison, idéale pour se détendre avec une grande entreprise. Le point culminant est terrasse spacieuse surface de 21 m2. Ici, vous pouvez facilement installer une table à manger et même un coin salon confortable avec des meubles rembourrés peut être organisé. Si vous le souhaitez, vous pouvez placer plusieurs chaises longues autour de la table à manger ou à la place et passer un bon moment en respirant l'air pur de la campagne et en buvant un cocktail. En général, il existe de nombreuses options, mais surtout, La terrasse est facilement accessible depuis la cuisine-salon combinée. Si vous décidez d'organiser un déjeuner ou un dîner à l'air frais, toutes les assiettes et les appareils peuvent être rapidement transférés. Un petit espace de rangement peut être aménagé dans un spacieux vestibule. Il y a un rez-de-chaussée et une place pour fourafin que la maison puisse être utilisée pour les vacances d'hiver, et même pour la résidence permanente. Il y avait une place ici pour une petite chambre, à côté de laquelle se trouvait une salle de bain.
Le deuxième étage est un espace de couchage pur.Il y a trois chambres assez spacieuses, dont deux ouvrent sur une commune longue balcon. Si vous y mettez quelques chaises et une petite table basse, vous pouvez obtenir un autre coin salon confortable. Pratique que le grenier a sa propre salle de bainet un petit vestibule peut être transformé en garde-manger. La superficie totale de la maison est de près de 176 m2.
N ° 5. Projet "Confort"
La maison construite selon ce projet est le rêve de chacun, un objet de fierté et d'envie. Sur une surface solide de 268 m2 Tous les locaux nécessaires pour une famille nombreuse ou un repos d'entreprise sont situés. Intéressant façade avec un grand vitrage cache deux étages spacieux. Au centre du premier se trouve le hall, qui passe en douceur dans le salon. La cuisine n'est pas très grande, seuls les machines et équipements nécessaires peuvent y être placés, et la table à manger, comme le suggère le projet, est mieux placée dans le salon. Il n'est pas nécessaire de manger sur quatre murs lorsque la maison a terrasse d'une superficie de près de 30 m2. Vous pouvez vous y rendre directement depuis le salon. En plus de la table à manger, vous pouvez y installer des canapés moelleux, des chaises longues ou aménager un véritable jardin fleuri. Une salle de bain est située autour du périmètre du premier étage, dressing, chaufferie et chambre.
Au deuxième étage, il y a trois autres chambres. La salle avec grande surface vitrée, ainsi que le salon situé sous cette chambre. Se réveiller en admirant la vue depuis la fenêtre n'a pas de prix. Pour rendre tous les ménages et les invités confortables, au grenier il y a deux salles de bain et un dressing. Il semble que dans cette maison tout est pris en compte, donc on peut l'appeler idéal.

N ° 6. Projet de maison
Si le projet précédent vous semblait soudainement modeste, alors cette maison saura certainement satisfaire tous vos besoins. Sur une superficie de 481 m2 5 chambres et 4 salles de bains sont situées, et de nombreuses pièces peuvent être aménagées à votre goût, après avoir reçu encore plus de chambres à coucher. Une telle maison peut devenir un mini-hôtel ou simplement un lieu de repos pour de très grandes entreprises. Fonctionnalité du projet - vitrage d'angle panoramique de la salle. Le plafond du salon est le toit de la maison, car le projet prévoit l'organisation deuxième lumière. Il s'avère une salle très solennelle où vous passerez un bon moment. À côté du salon se trouve une grande cuisine-salle à manger avec accès à immense terrasse, qui peut être considéré comme un autre point fort du projet.
Au rez-de-chaussée, il y avait également une chaufferie et un grand dressing, accessible directement depuis le couloir. Idéalement! Deux chambres ont une salle de bain partagée. Le centre du deuxième étage peut être appelé un grand hall avec une belle vue depuis la fenêtre. En fait, c'est un autre salon. Depuis le hall, les portes mènent à trois chambres, chacune équipée de sa propre salle de bain, et deux ont des balcons spacieux, et une a son propre dressing. Il y a aussi un dressing commun à l'étage, mais il est si grand qu'il peut facilement être transformé en bureau ou en une autre chambre. Un rêve, pas une maison!

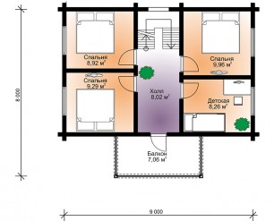
Numéro 7. Projet Sindr
Placer autant de pièces utiles sur une superficie de 109 m2Cela semble impossible, mais les créateurs de ce projet ont apparemment un esprit vif et une pensée extrêmement rationnelle. La disposition est frappante de réflexion et de commodité, car dans une zone relativement petite cuisine-séjour spacieuse et 5 chambres. Oui, les chambres sont petites mais reposez-vous.
Le seul point négatif est que la salle de bain est une, mais elle est grande. Par conséquent, le projet peut être modifié afin d'obtenir deux salles de bain. Cependant, une telle modification peut alors être réalisée indépendamment. Soudoie une jolie maison balcon sortie du hall du deuxième étage. Les dimensions compactes (8 * 9 m) permettront de placer un tel bâtiment sur petite zone.

Numéro 8. Projet alpin
Le projet propose de construire une maison assez confortable où l'on a envie de revenir encore et encore. Il fournit abri d'auto, mais si vous le souhaitez, cette zone peut être utilisée à d'autres fins, car elle est en fait prête gazebo. Depuis le porche, vous vous trouverez dans le hall d'entrée, d'où la porte mène au salon, la pièce centrale du premier étage. Il est combiné avec une large allée avec la cuisine-salle à manger. Au rez-de-chaussée il y a aussi une chambre et une salle de bain. La chaufferie est accessible depuis une entrée indépendante, depuis vérandas.
L'étage mansardé se compose de trois chambres spacieuses et d'un grand hall où vous pouvez mettre une armoire ou organiser un espace détente, par exemple, avec une table de billard. De la salle il y a accès à balcon commun, pour organiser l'espace dont est également utile. Surface totale 160 m2. Le projet est parfait pour la construction d'une maison de campagne.

N ° 9. Le projet "Confort"
Selon ce projet, vous pouvez construire une maison confortable et bien pensée, adaptée à la résidence permanente, à la résidence d'été et aux sorties en famille à la campagne. Superficie de la maison de 162 m2 attirera l'attention salle à manger inhabituellement située. Il rappelle un peu un gazebo, seulement à proximité de la maison. Une grande surface vitrée fera de chaque repas un plaisir particulier. À côté de la salle à manger se trouve la cuisine, qui est complètement séparée du salon. De plus, au rez-de-chaussée il y aura une chambre, une salle de bain, un hall spacieux et un hall d'entrée, donc l'organisation des lieux de stockage n'est pas un problème.
Au deuxième étage, il y a quatre chambres situées symétriquement, unies par un hall commun. Il y a aussi une salle de bain, et le projet propose de transformer une des pièces en bureau. Cependant, avec le même succès, il est possible d'aménager une pépinière, un home cinéma ou une petite salle de sport. Deux chambres ont accès à un balcon commun. Impossible de ne pas tomber amoureux de cette maison!
N ° 10. Le projet "Village"
Termine notre sélection de quelques projets de maisons à un étage. Commençons par un plus grand. Le cœur de cette maison sera le salon et la cuisine-salle à manger. Les locaux sont combinés et forment ensemble une zone de loisirs commune assez spacieuse. L'espace personnel est représenté par trois chambres complètement identiques et, hélas, une salle de bain, mais vous ne pouvez pas appeler ça petit. Espace alloué sous la chaufferie.
Une caractéristique de ce projet peut être considérée comme un salon spacieux avec un semblant d'une baie vitrée et une grande zone d'éclairage. Soit dit en passant, depuis le salon, il y a deux sorties symétriques dans la rue. Compte tenu de la proximité de ces sorties du coin cuisine, d'excellents pique-niques peuvent être organisés sur le terrain. Surface de la maison 110 m2.
N ° 11. Projet supercompact
Si vous aimez passer du temps à l'extérieur dans la solitude ou seul avec votre bien-aimé, alors beaucoup d'espace n'est pas nécessaire. Ce projet prévoit la construction d'un petit maison de plain-pied de 53 m2à peu près comme des appartements d'une chambre nouveaux bâtiments. En termes d'équipement et d'aménagement, il leur rappelle. Une chambre, un salon, une cuisine et une salle de bain un peu séparés du salon - quoi d'autre est nécessaire pour une récréation en plein air confortable? Une telle petite maison et pour une résidence permanente conviendra, seulement pour une petite famille.
Depuis le salon, il y a un accès à la terrasse, bien, mais il est facile de trouver une zone d'été. La maison peut être complétée par un gazebo et d'autres bâtiments, de sorte qu'à la fin, vous obtenez le chalet parfait.
En conclusion, je voudrais noter que vous pouvez apporter de petites modifications aux projets standard, et en conséquence, la maison de rêve répondra à toutes vos exigences et vous coûtera assez peu cher. Si aucune des nombreuses solutions existantes ne peut satisfaire vos besoins, vous pouvez toujours créer un projet individuel.















