Les meilleurs projets de maisons et chalets à un étage
Quand vient le temps de construire votre propre maison, la question de savoir quel projet choisir apparaît parmi les premières. Naturellement, l'aménagement, le nombre d'étages, la surface habitable dépendent des caractéristiques du site, des préférences personnelles et de la taille de la famille qui y vivra ou s'y relaxera. Mais quand vous choisissez un projet pour votre chalet, faites attention aux maisons à un étage, qui ont beaucoup d'avantages.
Les étages de la future maison doivent être choisis en fonction de la fonctionnalité et des caractéristiques des personnes qui y vivent. Un facteur important est également la rentabilité de la construction, ainsi que la superficie de la parcelle: dans une grande surface, une maison à un étage aura l'air la plus appropriée, mais dans les zones moyennes et même petites, ce sera une excellente option si son projet est correctement sélectionné.
Maisons à un étage plus économique à la fois en termes de construction et d'exploitation. Fondation il n'a pas besoin d'autant de puissance que pour les immeubles de grande hauteur, mais la vérité est que plus la surface de la maison est grande, plus le coût de la fondation est élevé. La construction de murs dans une telle maison coûtera beaucoup moins, car ils n'auront pas besoin d'être encore renforcés pour résister à la charge de l'étage supérieur. Un autre aspect des économies est l'installation de communications, dont les schémas dans une maison à un étage sont beaucoup plus simples, ce qui signifie que leur mise en œuvre prendra moins de temps et nécessitera moins de coûts financiers, et le chauffage d'une maison à un étage en hiver est beaucoup plus facile et moins cher que celui à deux étages. Mais vous pouvez économiser de l'argent non seulement au stade de la construction, mais aussi à l'exploitation, car les travaux de réparation seront beaucoup moins chers. En outre, ces maisons sont idéales pour les familles avec enfants et les personnes âgées, car elles ne sont pas escaliersqui peut provoquer des blessures. Une maison à un étage attire également l'attention d'un point de vue purement psychologique, car elle crée un sentiment d'unité, ce qui est important, surtout s'il s'agit d'une famille avec enfants.
Lorsque vous choisissez un projet pour une maison à un étage, cela vaut la peine de considérer l'une de ses caractéristiques - une grande surface de toit, ce qui signifie que vous devez soigneusement aborder son installation, et il y aura plus de coûts ici que dans une maison à deux étages de la même quadrature.
Une option de projet d'un étage sera la plus appropriée si vous souhaitez construire une maison d'une superficie d'environ 100 m2, et en même temps utiliser les fonds, le temps et les efforts de manière aussi rationnelle et économique que possible. Souvent, l'un des inconvénients des maisons à un étage est appelé une caractéristique de la disposition, dans laquelle certaines pièces seront nécessairement traversantes. Mais cela peut facilement être évité si vous choisissez le bon projet, et nous avons choisi certains des meilleurs projets de maison à un étage.
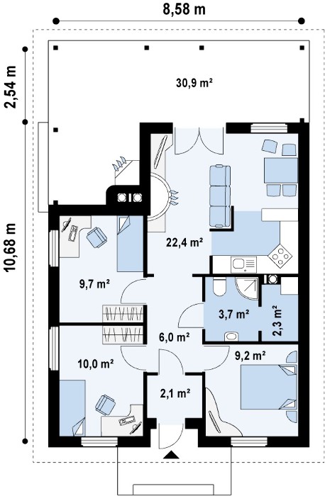
Maison classique d'un étage
Ceci est une maison d'une superficie de 61 m2 avec un salon spacieux, une cuisine, une salle de bain, deux chambres et un cellier. Il est idéal pour une famille de trois personnes ou peut être utilisé comme maison de campagne confortable, car il combine des qualités importantes comme la rentabilité et le confort.
Le projet attire l'attention d'un salon spacieux, combiné à une cuisine. La salle ne dispose pas seulement d'une cheminée - il y a aussi une immense sortie vitrée sur la terrasse. Si vous souhaitez faire un petit pique-nique ou un déjeuner au grand air, vous pouvez rapidement et facilement emporter tout ce dont vous avez besoin directement dans la cuisine. La terrasse couverte vous permettra d'être là par tous les temps: quand le soleil éblouit, et quand il pleut.Deux chambres lumineuses et spacieuses rendront vos vacances confortables et agréables, et toutes les choses nécessaires dont vous pourriez avoir besoin dans le jardin, la maison, etc., peuvent être placées dans le garde-manger.
La forme simple de la maison elle-même et le toit à pignon vous permettent d'ériger un bâtiment similaire dans les plus brefs délais, en économisant sur les factures de construction et de services publics. La combinaison de tous ces avantages fait de ce projet l'un des plus réfléchis, confortables et économiques.
Projet Iris
Une immense maison chic pour une grande famille, qui est très exigeante de son confort et de son confort. La superficie est de 160 m2, le projet implique l'utilisation de poutres collées comme matériau pour la construction des murs. Une apparence étonnante et des pièces fonctionnelles spacieuses sont les principaux avantages de cette maison d'un étage. Sur sa place, il y a trois grandes chambres, une cuisine avec un salon, un hall d'entrée, plusieurs salles de bains et d'autres pièces.
Le principal avantage de la maison est qu'avec son immense superficie, il a été possible de maintenir l'individualité de chaque pièce et d'éviter la présence de pièces de passage. Porche mène à un hall d'entrée spacieux, où il y a une place pour tout placard, canapé et autres meubles, car sa superficie est de 24 m2. La zone centrale de la maison est allouée au salon, combinée avec la cuisine et la salle à manger. Le projet propose de séparer la cuisine à l'aide du bar. De la cuisine, il y a accès à une immense terrasse située dans la cour. Il peut être utilisé à la fois comme zone de loisirs et comme salle à manger pendant la saison chaude. Idéalement, tous ceux qui vivent dans la maison y ont accès. Séparément, il convient de noter l'emplacement et l'équipement des chambres: deux d'entre elles ont leur propre salle de bain, donc courir dans les couloirs, faire la queue le matin près du bain et autres inconvénients communs à toutes les grandes familles peuvent être évités dans cette maison. La troisième salle de bain est située près d'une des chambres, et tout le monde y a accès: elle est pratique lorsque les invités sont dans la maison.
Maison de fée
Le projet de cette fabuleuse maison d'une superficie de 110 m2 est optimal pour une grande famille: voici trois chambres compactes, une paire de salles de bains et un atout - un salon combiné avec une cuisine. Les murs de la maison peuvent être faits de béton cellulaire ou des blocs de céramique, ce qui rendra la construction peu coûteuse, et une bande ou une fondation préfabriquée coulée en place rendra la construction durable et fiable.
Cette maison attire l'attention par sa division claire en zones jour et nuit: et si la nuit est aussi fonctionnelle que possible, la journée peut attirer l'attention de n'importe qui. Le grand salon ici est équipé d'une cheminée et jouxte la cuisine, qui est décorée d'une fenêtre d'angle. À première vue, cela peut sembler insignifiant, mais en fait, une telle fenêtre laisse entrer plus de soleil, rend la pièce visuellement plus spacieuse et, surtout, unique et originale. Mais ce n'est pas tout: d'énormes portes vitrées mènent du salon à la cour. Ils, tout en restant une protection fiable pour tous les résidents, laissent entrer la lumière dans la maison, s'unissent à la nature et sur la terrasse attenante, vous pouvez tripler un pique-nique à tout moment, car tout ce dont vous avez besoin est à portée de main dans la cuisine voisine.
La zone nuit de la maison contient trois chambres, deux salles de bains et un cellier, et les couloirs spacieux vous permettent de placer une armoire encastrée supplémentaire: c'est pratique s'il y a une grande famille dans la maison, et il y a vraiment beaucoup de choses.
Maison de garage avant
Une immense maison spacieuse qui offre confort, commodité et confort à chacun de ses habitants. La superficie totale ici est de 212 m2, résidentielle - 178 m2, il y a garage double, trois chambres, plusieurs salles de bains, de nombreuses buanderies où vous pouvez ranger des outils, des articles ménagers, mettre des armoires encastrées, etc.
Extérieurement, une maison construite sur un tel projet ne peut pas être appelée autrement que chic, mais le point culminant lui est donné par une lucarne triangulaire.Ce projet est unique, car il offre la possibilité de tout personnaliser à votre goût, même d'équiper un deuxième étage à part entière, ce qui donne 90 m2 supplémentaires. De plus, les «modifications» se prêtent à une grande salle de bain, qui peut être divisée en deux, des chambres, qui peuvent se transformer en bureau, bibliothèque, etc.
La maison peut être divisée visuellement en deux zones: nuit et jour. Dans le salon, il y a un salon spacieux avec une bonne lumière naturelle, qui est facilité par une immense porte couverte menant directement à la terrasse et à la cour. Cela permet non seulement d'économiser de l'électricité et de maximiser l'utilisation de la lumière naturelle, mais crée également le confort de mouvement, car vous pouvez sortir dans la cour rapidement et simplement et saisir des aliments prêts à l'emploi dans la cuisine.
Dans la zone de nuit de la maison, il y a trois chambres et deux salles de bains séparées, dont l'entrée ne se fait pas par les chambres, mais par le couloir commun. Un immense couloir vous permettra d'agencer facilement tout système d'armoires et de ranger soigneusement de nombreuses choses. De plus, de la maison, il y a une sortie vers le garage, auquel l'atelier est attenant. Le garage peut accueillir deux voitures. Dans cette maison pour le confort d'une grande famille tout est pensé dans les moindres détails.
Maison confortable avec une grande terrasse couverte
Cette maison, malgré ses dimensions miniatures, peut devenir confortable à la fois pour la résidence permanente et pour les vacances saisonnières. D'une superficie de 65 m2, il contient tout ce dont vous avez besoin, à savoir trois chambres, une salle de bain, une cuisine avec un salon, et la terrasse est tout simplement phénoménale - 30 m2, ce qui rend la maison idéale pour les familles, d'autant plus que la terrasse est équipée d'une cheminée extérieure: avec elle vous pouvez faire frire le barbecue et chauffer la maison, car il est double.
Le projet de cette maison d'un étage avec une façade en bois impressionne par sa réflexion, car dans une très petite zone il y a trois chambres et une salle de bain spacieuse. De plus, il y a suffisamment d'espace dans le couloir commun pour mettre une armoire, aménager des étagères et autres lieux de rangement. Le coin cuisine est combiné avec le salon et a accès à la terrasse. Tout cela est fait pour le confort maximum de la famille qui vit ici en permanence ou vient se détendre. La terrasse couverte peut être aménagée à votre guise, même organisée il y a plusieurs espaces: salle à manger, plage, espace avec hamac, des chaises confortables et une table basse, car vous ne pouvez pas avoir peur des précipitations atmosphériques et de la lumière directe du soleil.
Maison futuriste
Il s'agit d'un projet irréaliste d'une maison du futur avec une superficie totale de 131 m2. Son façade séduit immédiatement par sa finition originale et inhabituelle, qui aide à laisser entrer la lumière de manière intéressante. La maison comprend trois chambres, deux salles de bain, un salon, une cuisine et des buanderies.
Une caractéristique et le principal avantage de ce projet est la disposition non standard des entrées. Ainsi, l'entrée principale est située derrière la maison, et devant la maison il y a deux entrées vers les chambres et une piscine, à laquelle mène une immense porte vitrée du salon. Le fait que vous puissiez sortir dans la cour à partir de deux chambres et du salon est la principale différence entre ce projet et un certain nombre de projets similaires. Le salon lumineux et spacieux est équipé d'une cheminée et coule en douceur dans le coin cuisine ordinaire. Le projet implique la disponibilité de deux salles de bain, ce qui sera particulièrement pratique pour une grande famille. Il y a un certain nombre de pièces pouvant être équipées de garde-manger, dressing, buanderie, qui rendront la vie dans une telle maison confortable. Suivant l'idée du projet, sur la terrasse, vous pouvez équiper une piscine carrée stricte, qui met l'accent sur le minimalisme et le futurisme de toute la maison.
En conclusion
Le projet fini d'une maison à un étage est une opportunité d'économiser de l'argent et de trouver une solution pensée par des architectes et des designers qui satisfera tous les souhaits. Si nécessaire, il est facile d'apporter des modifications au projet que vous aimez, ce qui rendra la maison encore plus confortable et unique.


























Intéressé par une maison avec garage frontal
Intéressé par un projet de maison avec garage frontal.
Intéressé par une maison avec un garage frontal et une fabuleuse maison.
intéressé par le projet d'une maison fabuleuse
Intéressé par un projet de maison fabuleux, merci
intéressé par une maison avec garage frontal
Bonjour Intéressé par le numéro de projet "Fairy House". Je vous remercie